MHPL_SATTEL_45_VAR_klein1.jpg
S_045_S.jpg
S_045_EG_VER.jpg
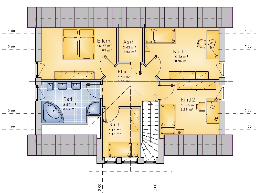
S_045_DG_VER.jpg
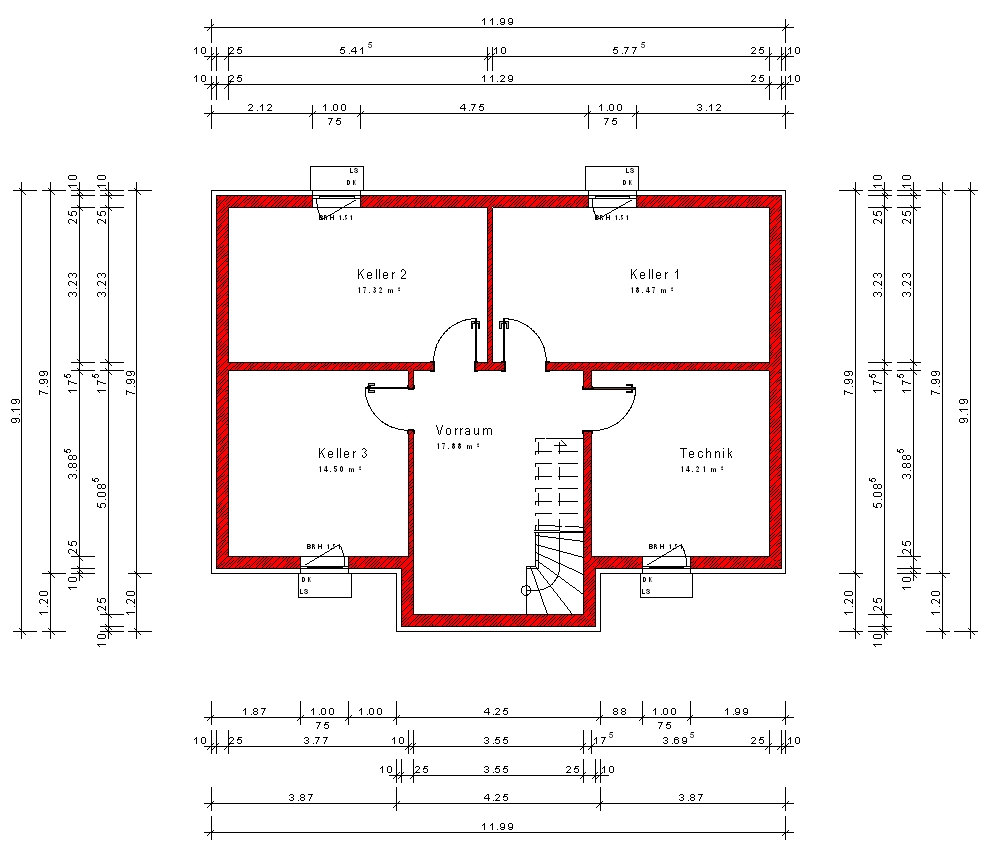
S_045_KG.jpg

Warning: Undefined array key "BildName6" in /homepages/44/d824659835/htdocs/Ninox/listing/index.php on line 829
MHPL_SATTEL_45_VAR_klein1.jpg
S_045_S.jpg
S_045_EG_VER.jpg
S_045_DG_VER.jpg
S_045_KG.jpg

S_045

Klassische Eleganz mit Satteldach und Erker

  • Flexibles Obergeschoss mit drei Schlafzimmern
  • Praktische Ausstattung mit Abstellkammer und Gäste-WC
  • Individuelle Anpassungsmöglichkeiten für Ihre Traumimmobilie

Klassische Eleganz von Außen und Innen


Betreten Sie Ihr neues Zuhause durch eine einladende Diele und lassen Sie sich von der klassischen Außenfassade mit Satteldach und einem charmanten Erker begrüßen. Dieses Einfamilienhaus strahlt zeitlose Eleganz aus, die sich im gesamten Interieur widerspiegelt. Die klare Linienführung und die sorgfältig gewählten Materialien schaffen eine harmonische Verbindung von Tradition und Moderne.

Großzügiges Wohnambiente für gesellige Stunden

Der großzügige Wohn- und Essbereich bildet das Herzstück dieses Hauses. Hier können Sie entspannte Stunden mit Familie und Freunden verbringen. Die Küche mit Essecke lädt zu gemeinsamen Mahlzeiten ein, während der angrenzende Hauswirtschaftsraum und die Abstellkammer für zusätzlichen Komfort sorgen. Die bodentiefen Fenster lassen viel Tageslicht herein und schaffen eine helle und freundliche Atmosphäre.

Flexibilität im Obergeschoss mit drei Schlafzimmern

Das Obergeschoss bietet mit drei Schlafzimmern vielfältige Möglichkeiten für individuelle Gestaltung. Eine besondere Note verleihen die Dachschrägen, die den Räumen eine gemütliche Atmosphäre verleihen. Die Abstellkammer und das kleine Gästezimmer bieten zusätzlichen Stauraum und die Option für Gästeunterkünfte oder ein persönliches Heimbüro.

Komfortable Ausstattung für den Alltag

Die praktische Einrichtung dieses Einfamilienhauses wird durch das Gäste-WC im Erdgeschoss abgerundet. Hier zeigt sich die durchdachte Planung, die Ihnen den Alltag erleichtert. Die klassische Eleganz der Außenfassade setzt sich im Inneren fort, und Sie können sicher sein, dass Ihr neues Zuhause nicht nur ästhetisch ansprechend, sondern auch funktional gestaltet ist.

Ihre Traumimmobilie nach Maß gestalten

Bitte beachten Sie, dass die obigen Beschreibungen und Bilder lediglich Beispiele darstellen. Dieses Einfamilienhaus ist nach Ihren individuellen Wünschen anpassbar. Kontaktieren Sie uns, um Ihr Traumhaus zu gestalten.

136m² Gesamtwohnfläche

Abmessungen
Länge 11.99m
Breite 9.19m
Wohn-/Nutzfläche
Kellergeschoss 82.38m²
Erdgeschoss 78.84m²
Dachgeschoss 57.48m²
Gesamtwohnfläche 136m²