MHPL_SATTEL_52_VAR_klein1.jpg
S_052_S.jpg
S_052_EG_VER.jpg
S_052_DG_VER.jpg
S_052_KG.jpg
S_052_A3.jpg
MHPL_SATTEL_52_VAR_klein1.jpg
S_052_S.jpg
S_052_EG_VER.jpg
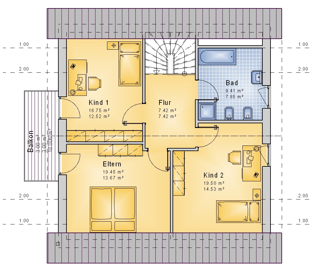
S_052_DG_VER.jpg
S_052_KG.jpg
S_052_A3.jpg

S_052

Einladendes Satteldach-Haus mit großer Wohnfläche

  • Drei gemütliche Schlafzimmer für Privatsphäre
  • Komfortabler Keller für Stauraum und Hobbyraum
  • Maßgeschneiderte Traumimmobilie nach Ihren Wünschen

Einladendes Einfamilienhaus mit Satteldach


Herzlich willkommen in diesem einladenden Einfamilienhaus mit einem charakteristischen Satteldach. Auf einer großzügigen Wohnfläche von 133,07m² erwartet Sie ein behagliches Zuhause, das all Ihre Wohnträume wahr werden lässt. Der Wohn- und Essbereich ist großzügig gestaltet und öffnet sich durch eine Tür zur Terrasse, die Ihnen die Möglichkeit bietet, entspannte Stunden im Freien zu genießen. Dieses Haus strahlt eine warme und einladende Atmosphäre aus.

Kulinarische Freuden in der offenen Küche

Die offene Küche dieses Hauses ist der perfekte Ort, um kulinarische Köstlichkeiten zu zaubern und gleichzeitig in Verbindung mit Ihren Gästen zu bleiben. Im Obergeschoss finden Sie drei gemütliche Schlafzimmer, die Ihnen die notwendige Privatsphäre und Erholung bieten. Das großzügige Badezimmer mit einer einladenden Badewanne lädt zu erholsamen Momenten ein, während das Gäste-WC im Erdgeschoss zusätzliche Bequemlichkeit bietet. Eine obere Etage mit charmanten Dachschrägen verleiht diesem Haus einen einzigartigen Charakter. Der Balkon ergänzt das Gesamtbild und bietet Ihnen einen malerischen Ausblick auf die Umgebung.

Komfortabler Wohnraum im Keller

Der Keller dieses Hauses ist nicht nur ideal für zusätzlichen Stauraum, sondern bietet auch Raum für Ihre individuellen Bedürfnisse. Hier können Sie Ihr Hobby ausleben oder einen gemütlichen Rückzugsort schaffen. Dieses Einfamilienhaus ist der perfekte Ort, um sich niederzulassen und Ihr eigenes individuelles Zuhause zu gestalten.

Ihre Traumimmobilie nach Maß

Bitte beachten Sie, dass die obigen Beschreibungen und Bilder lediglich Beispiele darstellen. Dieses Einfamilienhaus ist nach Ihren individuellen Wünschen anpassbar. Kontaktieren Sie uns, um Ihr Traumhaus zu gestalten. Wir stehen Ihnen gerne zur Verfügung, um Ihre Vorstellungen und Wünsche in die Realität umzusetzen.

133m² Gesamtwohnfläche

Abmessungen
Länge 10.99m
Breite 9.99m
Wohn-/Nutzfläche
Kellergeschoss 68.92m²
Erdgeschoss 74.08m²
Dachgeschoss 58.99m²
Gesamtwohnfläche 133m²