MHPL_SATTEL_82_VAR_klein1.jpg
S_082_S.jpg
S_082_EG_VER.jpg
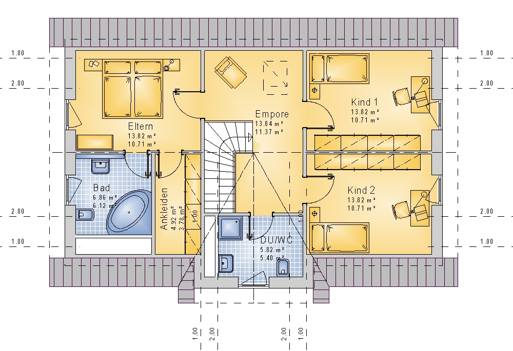
S_082_DG_VER.jpg
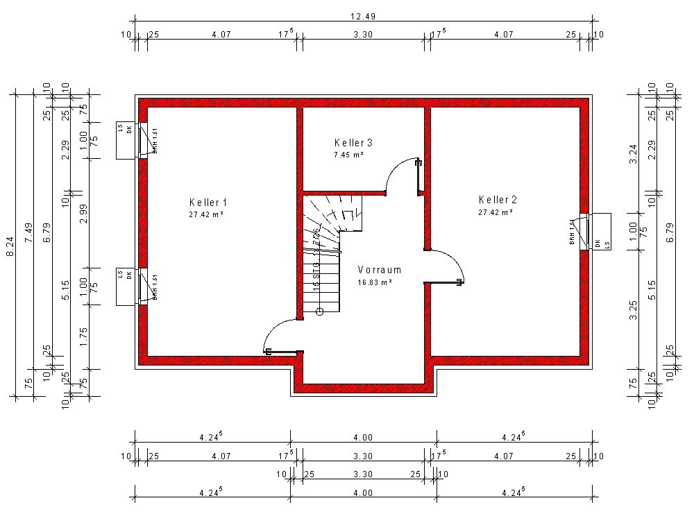
S_082_KG.jpg

Warning: Undefined array key "BildName6" in /homepages/44/d824659835/htdocs/Ninox/listing/index.php on line 829
MHPL_SATTEL_82_VAR_klein1.jpg
S_082_S.jpg
S_082_EG_VER.jpg
S_082_DG_VER.jpg
S_082_KG.jpg

S_082

- Modernes Einfamilienhaus mit einzigartiger Architektur

  • - Großes Wohnzimmer in L-Form mit hohen Decken
  • - 3 Schlafzimmer, eines mit anliegender Ankleide und Bad
  • - 3 Badezimmer, frei gestaltbare Empore im 2. Stock.

Ihre Traumimmobilie: Ein modernes Einfamilienhaus mit Satteldach und einer großzügigen Wohnfläche von 134,02 m².


Dieses Haus präsentiert sich in strahlendem Weiß mit einem auffälligen roten Anbau. Das schwarze Dach und die Verwendung verschiedener Farben und Materialien verleihen dem Haus seine einzigartige Architektur und eine ansprechende Ästhetik. Insgesamt ist dieses Haus ein gelungenes Beispiel für individuelles Design und ästhetische Vielfalt.

Einzigartige Architektur und Materialkombination:

Die Verwendung verschiedener Farben und Materialien in der Gestaltung des Hauses verleiht ihm seine einzigartige Architektur und eine ästhetische Vielfalt, die sich von anderen Immobilien abhebt.

Hauseingang in der Mitte mit großem Flur:

Der Eingang des Hauses befindet sich in der Mitte und wird von einem geräumigen Flur begleitet, der die Möglichkeit bietet, Gegenstände besser zu verstauen und den Eingangsbereich einladend gestaltet.

Großes Wohnzimmer in L-Form:

Der Wohnzimmerbereich erstreckt sich in einer L-Form, was eine offene und großzügige Atmosphäre schafft. Hohe Decken verstärken den Eindruck von Größe und Geräumigkeit.

3 Schlafzimmer im 2. Stock:

Im zweiten Stockwerk des Hauses befinden sich insgesamt drei Schlafzimmer, von denen eines über eine anliegende Ankleide und direkten Zugang zum Badezimmer verfügt. Diese Gestaltung bietet höchsten Komfort.

3 Badezimmer im gesamten Haus:

Das Haus ist mit insgesamt drei Badezimmern ausgestattet, was den Bewohnern Bequemlichkeit und Flexibilität bietet.

Frei gestaltbare Empore im 2. Stock:

Zusätzlich zur Funktionalität bietet das Haus eine Empore im zweiten Stock, die vielseitig gestaltet werden kann, sei es als Bibliothek, Galerie oder kreativer Raum.

Ihre Traumimmobilie nach Maß gestalten:

Bitte beachten Sie, dass die obigen Beschreibungen und Bilder lediglich Beispiele darstellen. Dieses Haus kann nach Ihren individuellen Wünschen angepasst werden. Kontaktieren Sie uns, um Ihr Traumhaus zu gestalten. Wir freuen uns darauf, Ihre persönlichen Vorstellungen von Wohnen und Komfort zu realisieren und Ihnen ein einzigartiges Zuhause zu schaffen, das all Ihren Bedürfnissen gerecht wird.

134m² Gesamtwohnfläche

Abmessungen
Länge 12.49m
Breite 8.24m
Wohn-/Nutzfläche
Kellergeschoss 79.12m²
Erdgeschoss 75.22m²
Dachgeschoss 58.8m²
Gesamtwohnfläche 134m²