MHPL_SATTEL_114_klein1.jpg
S_114_S.jpg
S_114_EG_VER.jpg
S_114_DG_VER.jpg
S_114_KG.jpg
S_114_A1.jpg
MHPL_SATTEL_114_klein1.jpg
S_114_S.jpg
S_114_EG_VER.jpg
S_114_DG_VER.jpg
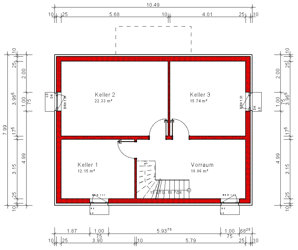
S_114_KG.jpg
S_114_A1.jpg

S_114

- Großes, modernes Einfamilienhaus mit Satteldach

  • - Offener Küchenbereich mit Blick auf Wohnzimmer
  • - 4 Schlafzimmer und gestaltbare Empore
  • - Ästhetische Flügeltür, Arbeitszimmer, modernste Technologie

Ihre Traumimmobilie: Ein großes Einfamilienhaus mit Satteldach.


Dieses moderne, umweltfreundliche Haus mit einer großzügigen Wohnfläche von 132,39 m² zeichnet sich nicht nur durch sein modernes Design und energieeffiziente Technologie aus, sondern auch durch seine ästhetische Flügeltür, die den Eingang des Wohnzimmers schmückt. Das Haus ist ein Paradebeispiel für moderne Architektur und energieeffizientes Wohnen.

Offener Küchenbereich und Wohnzimmer:

Der Küchenbereich bietet einen reizvollen Blick auf das Wohnzimmer, was eine offene und kommunikative Atmosphäre schafft. Hier können Sie Mahlzeiten zubereiten und gleichzeitig in Verbindung mit Familie und Freunden bleiben.

4 Schlafzimmer und individuell gestaltbare Empore:

Das Haus verfügt über vier Schlafzimmer, die ausreichend Platz für Ihre Familie und Gäste bieten. In der zweiten Etage befindet sich ein großes Badezimmer, das zum Entspannen einlädt. Außerdem gibt es eine Empore, die nach Ihren Wünschen gestaltet werden kann, sei es als Bibliothek oder als Galerie.

Ästhetische Flügeltür und Arbeitszimmer:

Der Eingang des Wohnzimmers wird von einer ästhetischen Flügeltür geziert, die den Charme des Hauses unterstreicht. In der ersten Etage des Hauses finden Sie ein Arbeitszimmer, das Platz für produktives Arbeiten bietet.

Energieeffiziente Technologie und umweltfreundliches Design:

Das Haus ist mit modernster energieeffizienter Technologie ausgestattet, die zu Kosteneinsparungen und einem geringeren ökologischen Fußabdruck beiträgt. Das umweltfreundliche Design des Hauses ist eine Investition in die Zukunft.

Ihre Traumimmobilie nach Maß gestalten:

Bitte beachten Sie, dass die obigen Beschreibungen und Bilder lediglich Beispiele darstellen. Dieses Haus kann nach Ihren individuellen Wünschen angepasst werden. Kontaktieren Sie uns, um Ihr Traumhaus zu gestalten. Wir freuen uns darauf, Ihre persönlichen Vorstellungen von Wohnen und Komfort zu realisieren und Ihnen ein einzigartiges Zuhause zu schaffen, das all Ihren Bedürfnissen gerecht wird.

132m² Gesamtwohnfläche

Abmessungen
Länge 10.49m
Breite 9.49m
Wohn-/Nutzfläche
Kellergeschoss 68.28m²
Erdgeschoss 70.98m²
Obergeschoss 61.41m²
Gesamtwohnfläche 132m²