MHPL_SATTEL_231_VAR_klein1.jpg
S_231_S.jpg
S_231_EG_VER.jpg
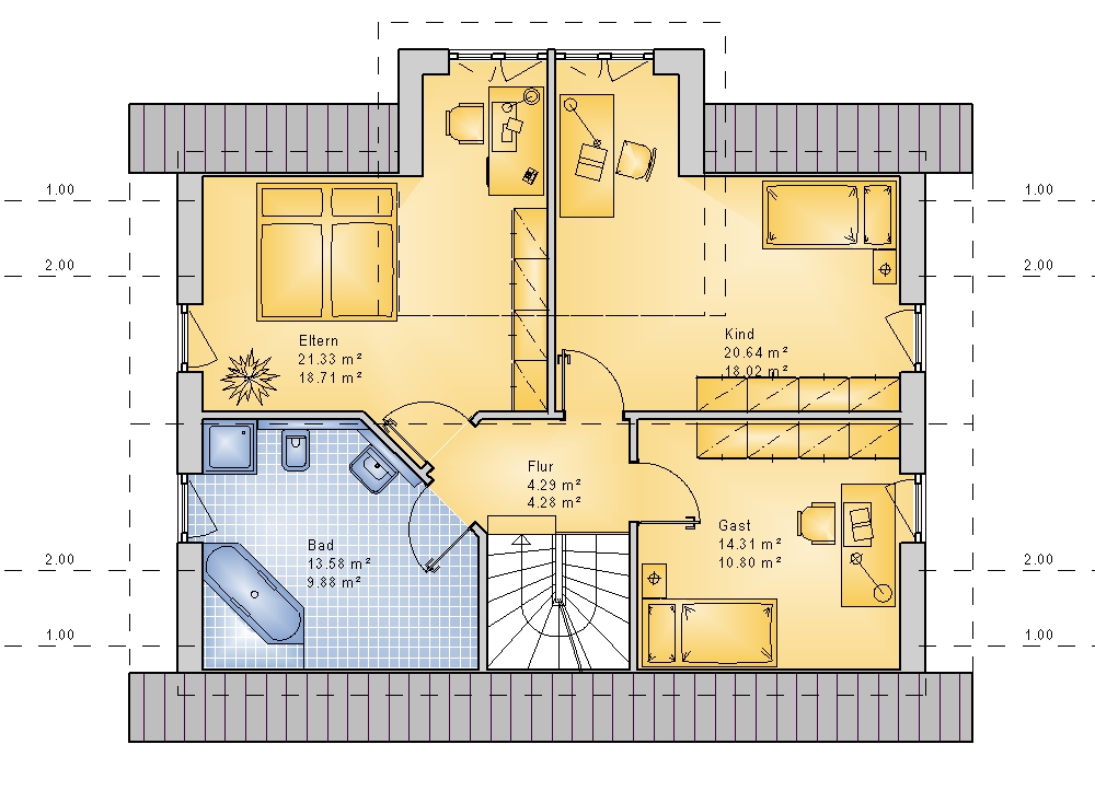
S_231_DG_VER.jpg
S_231_KG.jpg
S_231_A4.jpg
MHPL_SATTEL_231_VAR_klein1.jpg
S_231_S.jpg
S_231_EG_VER.jpg
S_231_DG_VER.jpg
S_231_KG.jpg
S_231_A4.jpg

S_231

- Großes zweistöckiges Haus mit grüner Fassade

  • - Geräumiges Wohnzimmer mit hohen Decken und viel Tageslicht
  • - Getrennte Küche und flexibles Büro im Untergeschoss
  • - 3 Schlafzimmer im 2. Stock, 2 Badezimmer im gesamten Haus

Ihre Traumimmobilie: Ein großes, zweistöckiges Einfamilienhaus mit Satteldach und einer großzügigen Wohnfläche von 135,01 m².


Die grüne Außenfassade verleiht dem Haus eine frische und natürliche Ausstrahlung. Mit nachhaltiger Energieversorgung ist dieses Haus ein gelungenes Beispiel für eine harmonische Verbindung von Architektur und Natur.

Grüne Außenfassade und nachhaltige Energieversorgung:

Das Haus ist nicht nur optisch grün, sondern setzt auch auf nachhaltige Energieversorgung, was zu Einsparungen und Umweltfreundlichkeit beiträgt.

Harmonische Verbindung von Architektur und Natur:

Die grüne Fassade und die Umweltfreundlichkeit des Hauses schaffen eine harmonische Verbindung von Architektur und Natur, was eine einladende Atmosphäre schafft.

Geräumiges Wohnzimmer mit hohen Decken:

Das Wohnzimmer im Erdgeschoss ist großzügig gestaltet, mit hohen Decken und bodentiefen Fenstern, die viel Tageslicht hereinlassen und den Wohnbereich lichtdurchflutet machen.

Getrennte Küche und Büro im Untergeschoss:

Die Küche ist getrennt vom Wohnzimmerbereich gestaltet, was eine klare Raumaufteilung schafft. Im Untergeschoss befindet sich ein Büro, das die Arbeit von zu Hause aus erleichtert und flexibel gestaltet werden kann.

3 Schlafzimmer im 2. Stock:

Im zweiten Stock des Hauses befinden sich insgesamt drei Schlafzimmer, von denen eines als Gastzimmer oder flexibel nach Bedarf gestaltet werden kann.

2 Badezimmer im gesamten Haus:

Das Haus ist mit insgesamt zwei Badezimmern ausgestattet, was den Bewohnern Bequemlichkeit und Komfort bietet.

Ihre Traumimmobilie nach Maß gestalten:

Bitte beachten Sie, dass die obigen Beschreibungen und Bilder lediglich Beispiele darstellen. Dieses Haus kann nach Ihren individuellen Wünschen angepasst werden. Kontaktieren Sie uns, um Ihr Traumhaus zu gestalten. Wir freuen uns darauf, Ihre persönlichen Vorstellungen von Wohnen und Komfort zu realisieren und Ihnen ein einzigartiges Zuhause zu schaffen, das all Ihren Bedürfnissen gerecht wird.

135m² Gesamtwohnfläche

Abmessungen
Länge 10.99m
Breite 9.49m
Wohn-/Nutzfläche
Kellergeschoss 72.04m²
Erdgeschoss 73.32m²
Dachgeschoss 61.69m²
Gesamtwohnfläche 135m²