MHPL_SATTEL_44_VAR_klein1.jpg
S_044_S.jpg
S_044_EG_VER.jpg
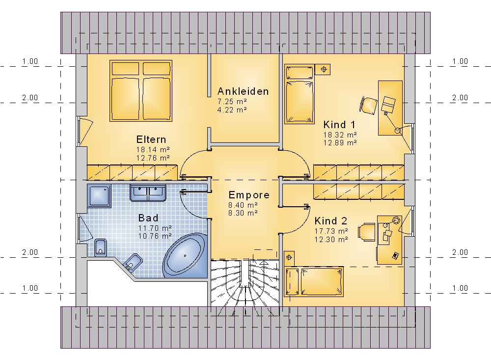
S_044_DG_VER.jpg
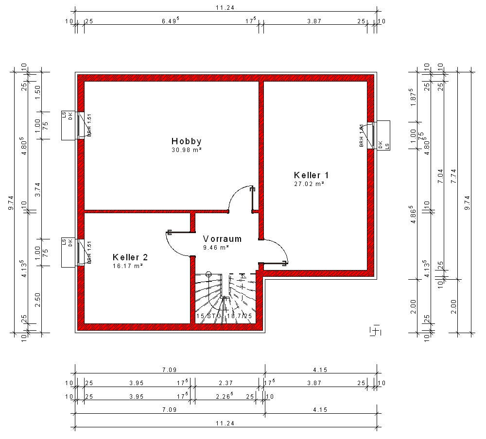
S_044_EG_KG.jpg

Warning: Undefined array key "BildName6" in /homepages/44/d824659835/htdocs/Ninox/listing/index.php on line 829
MHPL_SATTEL_44_VAR_klein1.jpg
S_044_S.jpg
S_044_EG_VER.jpg
S_044_DG_VER.jpg
S_044_EG_KG.jpg

S_044

Zeitlose Eleganz der klassischen Außenfassade

  • Offene Küche mit Wohndiele als zentralem Treffpunkt
  • Elternzimmer mit Ankleidezimmer für luxuriösen Rückzug
  • Überdachte Terrasse für nahtlose Indoor-Outdoor-Verbindung

Außengestaltung: Zeitlose Eleganz


Betreten Sie Ihr neues Zuhause durch eine klassische Außenfassade, die zeitlose Eleganz ausstrahlt. Das Satteldach verleiht dem Einfamilienhaus eine traditionelle Note, während bodentiefe Fenster für einen lichtdurchfluteten Innenraum sorgen. Die klaren Linien und die harmonische Gestaltung setzen architektonische Akzente und laden Sie ein, in eine ästhetische Wohnumgebung einzutreten.

Innenarchitektur: Eleganz und Funktionalität

Im Inneren erwartet Sie ein großzügiges Wohnzimmer, das durch bodentiefe Fenster eine Verbindung zum Garten schafft. Die offene Küche mit Wohndiele bildet das Herzstück des Hauses und bietet einen einladenden Raum für gemeinsame Momente. Dachschrägen im Obergeschoss verleihen den drei Schlafzimmern und dem Elternzimmer mit Ankleidezimmer eine behagliche Atmosphäre.

Praktische Raumgestaltung: Windfang und Garderobenraum

Der Windfang und der Garderobenraum im Eingangsbereich sorgen für eine funktionale Raumgestaltung und bieten einen stilvollen Empfang für Sie und Ihre Gäste. Diese durchdachten Elemente schaffen nicht nur eine angenehme Atmosphäre beim Betreten des Hauses, sondern bieten auch praktischen Stauraum für Jacken und Accessoires.

Outdoor-Living: Große Terrasse für Genuss im Freien

Das großzügige Wohnzimmer öffnet sich zur überdachten Terrasse, die als Outdoor-Living-Bereich dient. Hier können Sie die Natur genießen und gemütliche Stunden im Freien verbringen. Die Verbindung von Innen- und Außenbereich schafft eine nahtlose Erweiterung Ihres Wohnraums und bietet vielfältige Möglichkeiten für Entspannung und gesellige Zusammenkünfte.

145m² Gesamtwohnfläche

Abmessungen
Länge 11.24m
Breite 9.74m
Wohn-/Nutzfläche
Kellergeschoss 83.63m²
Erdgeschoss 83.92m²
Dachgeschoss 61.23m²
Gesamtwohnfläche 145m²