MHPL_SATTEL_457_Garten1_klein1.jpg
S_457_S.jpg
S_457_EG_VER.jpg
S_457_DG_VER.jpg
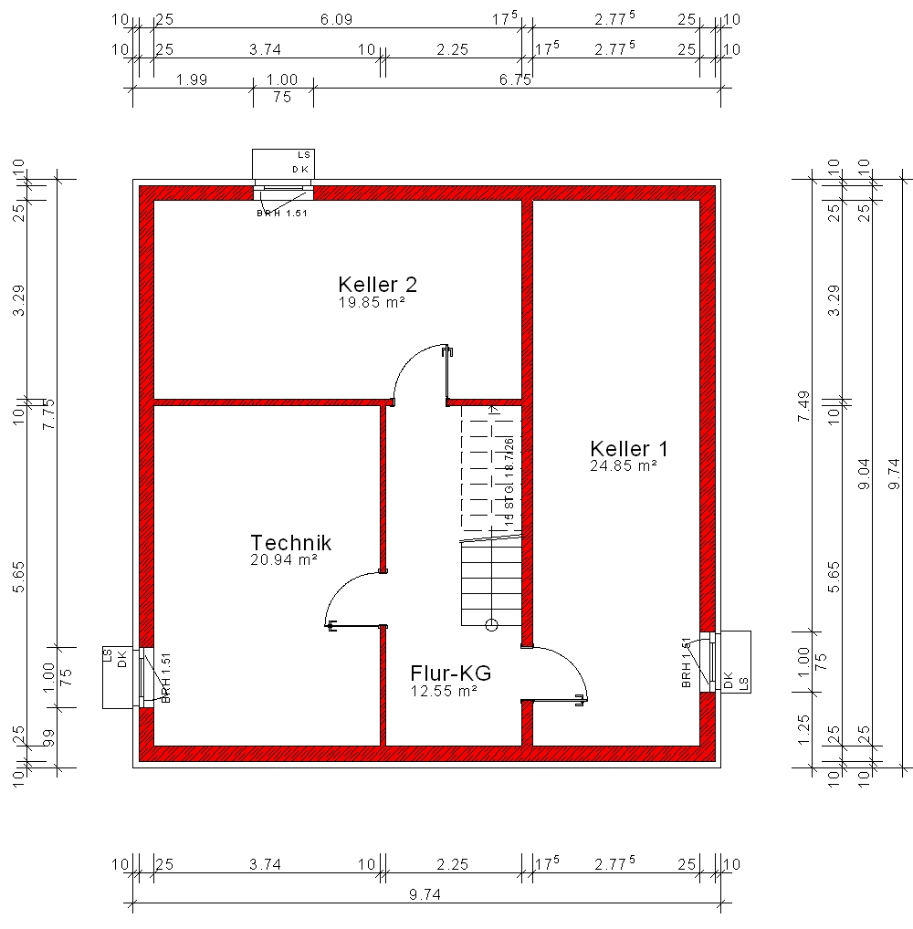
S_457_KG.jpg

Warning: Undefined array key "BildName6" in /homepages/44/d824659835/htdocs/Ninox/listing/index.php on line 829
MHPL_SATTEL_457_Garten1_klein1.jpg
S_457_S.jpg
S_457_EG_VER.jpg
S_457_DG_VER.jpg
S_457_KG.jpg

S_457

- Große, offene Vorhalle mit Panoramablick auf den Garten.

  • - Geräumiger Wohnbereich, perfekt für die ganze Familie.
  • - Drei Schlafzimmer mit anliegendem Ankleidezimmer im 2. Stock.
  • - Luxuriöse Badezimmer auf zwei Stockwerken verteilt.

Moderne Familienresidenz mit Satteldach und Großzügigem Design


Herzlich willkommen in Ihrer neuen Traumimmobilie, einer modernen Familienresidenz mit Satteldach und großzügiger Wohnfläche von 144,97 m². Dieses weiße Einfamilienhaus beeindruckt nicht nur durch sein modernes Design, sondern auch durch die perfekte Verbindung von Form und Funktionalität.

Einladende, offene Vorhalle mit Blick auf den Garten

Die große, offene Vorhalle des Hauses, gekennzeichnet durch eine elegante Glasscheibe, eröffnet einen herrlichen Blick auf den grünen Garten. Dies schafft eine einladende Atmosphäre und verbindet den Innenraum nahtlos mit der Natur.

Vielfältiges Farbspiel und Materialien für ein einzigartiges Ambiente

Eine Palette von verschiedenen Farben und Materialien verleiht diesem Haus eine einzigartige und moderne Ästhetik. Die sorgfältig ausgewählten Elemente tragen dazu bei, eine individuelle und stilvolle Atmosphäre zu schaffen.

Geräumiger Wohnbereich für die ganze Familie

Der großzügige Wohnbereich ist darauf ausgerichtet, Platz für die gesamte Familie zu bieten. Die offene Gestaltung integriert geschickt den Küchenbereich auf der rechten Seite, der einen ungestörten Blick auf den Wohnbereich gewährt.

Drei Schlafzimmer und luxuriöse Badezimmer im 2. Stock

Im zweiten Stock des Hauses finden Sie drei geräumige Schlafzimmer, von denen eines ein anliegendes Ankleidezimmer hat. Auf zwei Stockwerken verteilt, bieten die drei Badezimmer einen Hauch von Luxus und Komfort.

Ihre individuelle Traumimmobilie gestalten

Bitte beachten Sie, dass die obigen Beschreibungen und Bilder lediglich Beispiele darstellen. Diese moderne Familienresidenz mit Satteldach kann nach Ihren individuellen Wünschen angepasst werden. Kontaktieren Sie uns, um Ihr Traumhaus zu gestalten.

145m² Gesamtwohnfläche

Abmessungen
Länge 9.74m
Breite 9.74m
Wohn-/Nutzfläche
Kellergeschoss 78.19m²
Erdgeschoss 75.21m²
Dachgeschoss 69.76m²
Gesamtwohnfläche 145m²