MHPL_SATTEL_06_VAR_klein1.jpg
S_006_S.jpg
S_006_EG_VER.jpg
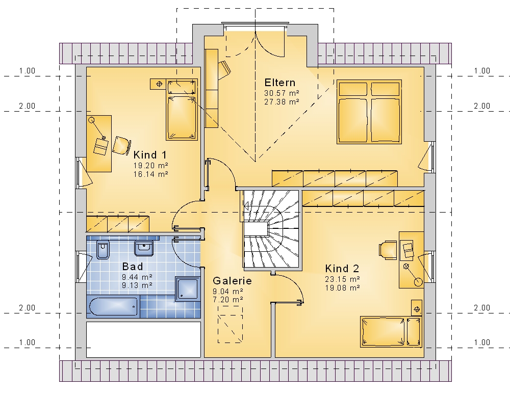
S_006_DG_VER.jpg
S_006_KG.jpg
S_006G_A1.jpg
MHPL_SATTEL_06_VAR_klein1.jpg
S_006_S.jpg
S_006_EG_VER.jpg
S_006_DG_VER.jpg
S_006_KG.jpg
S_006G_A1.jpg

S_006

Klassische Außenfassade mit zeitloser Eleganz

  • Geräumiges Wohn- und Esszimmer mit offener Küche
  • Durchdachte Raumaufteilung für Funktionalität und Stil
  • Individuelle Anpassungsmöglichkeiten für Ihr Traumhaus

Zeitlose Eleganz im Äußeren:

Ihr Einfamilienhaus präsentiert sich mit einer klassischen Außenfassade, die zeitlose Eleganz ausstrahlt. Das Satteldach und die geschickt platzierte Dachgaube verleihen der Architektur eine ansprechende Silhouette. Die Liebe zum Detail zeigt sich auch am Gaubenfenster im Elternzimmer, das nicht nur für eine charmante Optik sorgt, sondern auch für eine lichtdurchflutete Atmosphäre im Inneren.

Harmonisches Wohnkonzept für Genussmomente:
Die 175,94 m² Wohnfläche Ihres Hauses sind optimal aufgeteilt, um ein harmonisches Wohnkonzept zu verwirklichen. Das geräumige Wohn- und Esszimmer mit offener Küche bildet den Mittelpunkt, wo gesellige Stunden und kulinarische Genussmomente Platz finden. Die drei Schlafzimmer bieten Komfort und Rückzugsmöglichkeiten, während der Hauswirtschaftsraum und das Gäste-WC die alltäglichen Bedürfnisse abdecken.

Funktionalität und Stil in jedem Detail:
Dieses Einfamilienhaus vereint Funktionalität und Stil bis ins kleinste Detail. Der Garderobenraum neben dem Eingang ermöglicht einen organisierten Start in den Tag. Das Arbeitszimmer bietet Raum für konzentriertes Arbeiten. Die durchdachte Raumaufteilung und die hochwertige Ausstattung garantieren Ihnen ein Zuhause, das sowohl Ihren ästhetischen Ansprüchen als auch Ihren praktischen Bedürfnissen gerecht wird.

Ihre Traumimmobilie nach Maß gestalten:
Bitte beachten Sie, dass die obigen Beschreibungen und Bilder lediglich Beispiele darstellen. Dieses Einfamilienhaus ist nach Ihren individuellen Wünschen anpassbar. Kontaktieren Sie uns, um Ihr Traumhaus zu gestalten.

176m² Gesamtwohnfläche

Abmessungen
Länge 11.49m
Breite 10.99m
Wohn-/Nutzfläche
Kellergeschoss 81.09m²
Erdgeschoss 97.01m²
Dachgeschoss 78.93m²
Gesamtwohnfläche 176m²