MHPL_SATTEL_09_VAR_klein1.jpg
S_009_S.jpg
S_009_EG_VER.jpg
S_009_DG_VER.jpg
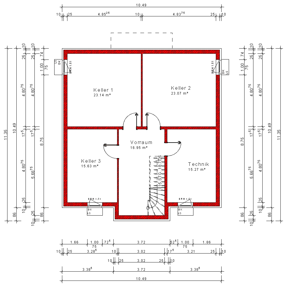
S_009_KG.jpg
S_009_A1.jpg
MHPL_SATTEL_09_VAR_klein1.jpg
S_009_S.jpg
S_009_EG_VER.jpg
S_009_DG_VER.jpg
S_009_KG.jpg
S_009_A1.jpg

S_009

Klassische Eleganz mit Backsteinverkleidung

  • Großzügiger Familienwohnbereich mit offener Küche
  • Drei Schlafzimmer für die gesamte Familie
  • Optionaler Keller für individuelle Raumgestaltung

Zeitlose Eleganz mit klassischer Außenfassade


Treten Sie ein in dieses einladende Einfamilienhaus mit Satteldach und einer Wohnfläche von 167,06 m². Die klassische Außenfassade, gekonnt mit Backsteinverkleidung gestaltet, verleiht dem Haus eine zeitlose Eleganz. Dachgauben setzen architektonische Akzente und sorgen für zusätzliches Tageslicht im Inneren. Die großzügige Diele heißt Sie willkommen und schafft einen einladenden Eindruck beim Betreten des Hauses.

Lichtdurchflutete Räume und Familienwohnbereich

Dieses Einfamilienhaus bietet nicht nur eine ansprechende Fassade, sondern auch einen großzügigen und lichtdurchfluteten Innenraum. Der offene Wohn- und Essbereich bildet das Herzstück des Hauses, während die große Küche mit viel Platz zum Kochen und Verweilen einlädt. Drei Schlafzimmer im Obergeschoss bieten genügend Raum für die gesamte Familie. Ein Hauswirtschaftsraum, Gäste-WC und die geschickt gestaltete Diele vervollständigen die durchdachte Wohnraumkonzeption.

Optionaler Keller für zusätzlichen Raum

Die Planung dieses Einfamilienhauses sieht die Möglichkeit eines Kellers vor, um Ihren Raumbedürfnissen noch besser gerecht zu werden. Nutzen Sie diesen Raum nach Ihren individuellen Bedürfnissen, sei es als zusätzlichen Wohnbereich, Hobbyraum oder Stauraum. Diese Flexibilität ermöglicht es Ihnen, Ihr Traumhaus ganz nach Ihren Vorstellungen zu gestalten und Ihren persönlichen Lebensstil zu integrieren.

Ihre Traumimmobilie nach Maß gestalten

Bitte beachten Sie, dass die obigen Beschreibungen und Bilder lediglich Beispiele darstellen. Dieses Einfamilienhaus ist nach Ihren individuellen Wünschen anpassbar. Kontaktieren Sie uns, um Ihr Traumhaus zu gestalten.

167m² Gesamtwohnfläche

Abmessungen
Länge 12.49m
Breite 10.49m
Wohn-/Nutzfläche
Kellergeschoss 94.06m²
Erdgeschoss 93.84m²
Dachgeschoss 73.22m²
Gesamtwohnfläche 167m²