MHPL_SATTEL_196_VAR_klein1.jpg
S_196_S.jpg
S_196_EG_VER.jpg
S_196_DG_VER.jpg
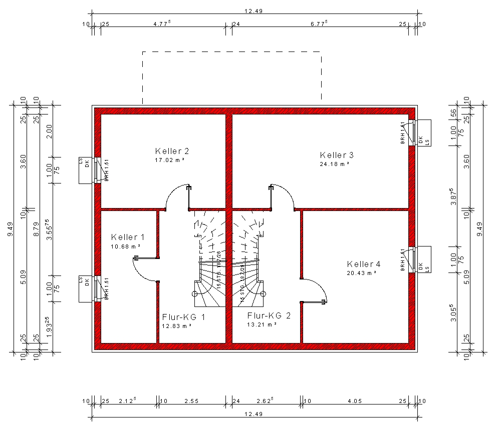
S_196_KG.jpg
S_196_A1.jpg
MHPL_SATTEL_196_VAR_klein1.jpg
S_196_S.jpg
S_196_EG_VER.jpg
S_196_DG_VER.jpg
S_196_KG.jpg
S_196_A1.jpg

S_196

198,32 m² modernes Mehrfamilienhaus mit Satteldach

  • Linke Einheit: 2 Schlafzimmer, offene Küche, Gäste-WC
  • Rechte Einheit: 3 Schlafzimmer, große Küche, Gäste-WC
  • Gemeinsamer Hauswirtschaftsraum für praktische Effizienz

Modernes Mehrfamilienhaus mit separaten Wohneinheiten


Herzlich willkommen in Ihrem modernen Mehrfamilienhaus mit einer großzügigen Wohnfläche von 198,32 m². Die moderne Außenfassade, kombiniert mit einem ansprechenden Erker, verleiht dem Satteldachhaus einen zeitgemäßen Charme. Beide Wohneinheiten sind über separate Eingänge zugänglich, und ein gemeinsamer Hauswirtschaftsraum mit eigenem Eingang sorgt für praktische Effizienz.

Individueller Wohnkomfort in beiden Wohneinheiten

Die linke Wohneinheit bietet eine kleinere, gemütliche Atmosphäre mit zwei Schlafzimmern, einem Bad mit Badewanne und einem offenen Wohnbereich. Die integrierte Küche schafft einen kommunikativen Raum, und ein Gäste-WC sowie ein eigener Hauswirtschaftsraum vervollständigen diese Einheit. Die rechte Wohneinheit hingegen präsentiert sich großzügiger mit drei Schlafzimmern, einem geräumigen Bad, einem weitläufigen Wohnzimmer und einer großen Küche. Auch hier steht Ihnen ein Gäste-WC sowie ein separater Hauswirtschaftsraum zur Verfügung.

Flexible Gestaltungsmöglichkeiten für Ihre Bedürfnisse

Dieses Mehrfamilienhaus bietet nicht nur eine moderne Architektur, sondern auch vielseitige Nutzungsmöglichkeiten. Die klare Trennung der Wohneinheiten ermöglicht Privatsphäre, während der gemeinsame Hauswirtschaftsraum für Effizienz sorgt. Die Anordnung der Zimmer und die Ausstattung sind nach Ihren individuellen Wünschen anpassbar, um Ihr Zuhause ganz nach Ihren Bedürfnissen zu gestalten.

Ihre Traumimmobilie nach Maß gestalten

Bitte beachten Sie, dass die obigen Beschreibungen und Bilder lediglich Beispiele darstellen. Dieses Mehrfamilienhaus ist nach Ihren individuellen Wünschen anpassbar. Kontaktieren Sie uns, um Ihr Traumhaus zu gestalten.

198m² Gesamtwohnfläche

Abmessungen
Länge 12.49m
Breite 11.49m
Wohn-/Nutzfläche
Erdgeschoss 96.38m²
Dachgeschoss 101.94m²
Gesamtwohnfläche 198m²