MHPL_SATTEL_435_klein1.jpg
S_435_S.jpg
S_435_EG_VER.jpg
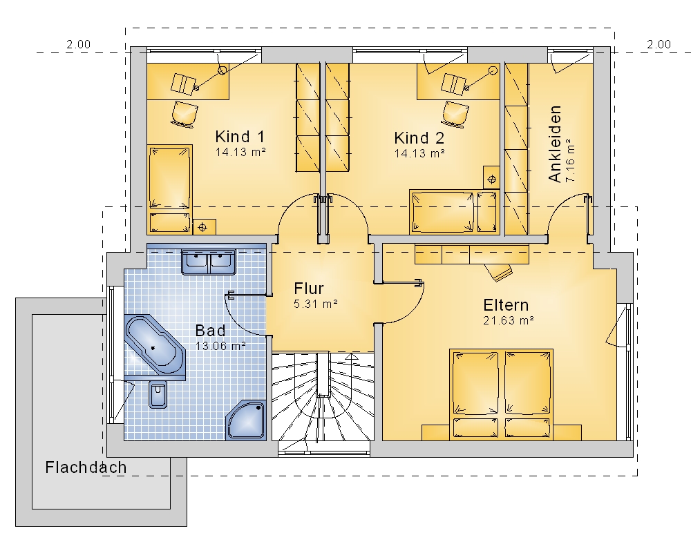
S_435_DG_VER.jpg
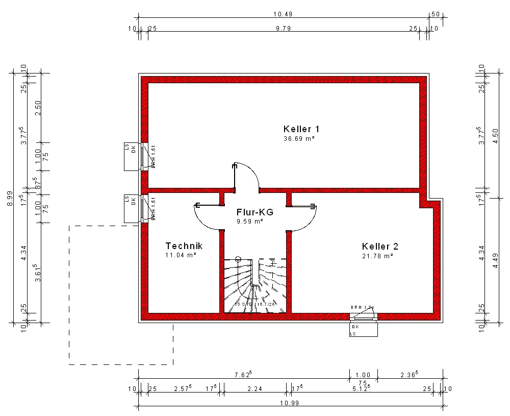
S_435_KG.jpg

Warning: Undefined array key "BildName6" in /homepages/44/d824659835/htdocs/Ninox/listing/index.php on line 829
MHPL_SATTEL_435_klein1.jpg
S_435_S.jpg
S_435_EG_VER.jpg
S_435_DG_VER.jpg
S_435_KG.jpg

S_435

Modernes Einfamilienhaus mit Pultdach

  • Drei Schlafzimmer, Ankleidezimmer und Arbeitszimmer
  • Große Fenster für viel Tageslicht
  • Möglichkeit zur individuellen Anpassung

Ein Einfamilienhaus mit modernem Pultdach


Willkommen in diesem einzigartigen Einfamilienhaus, das mit seinem modernen Pultdach und klaren Linien zeitgemäßes Wohnen verkörpert. Mit großzügigen 188 Quadratmetern Wohnfläche bietet dieses Haus Ihnen Raum für all Ihre Bedürfnisse. Die markanten, großen Fenster fangen das Tageslicht ein und verleihen der Architektur ein einladendes Flair.

Großer Wohn- und Essbereich mit offener Küche

Der großzügige Wohn- und Essbereich bildet das Herzstück dieses Hauses und lädt zu geselligen Abenden und kulinarischen Erlebnissen ein. Die offene Küche ist nicht nur funktional, sondern auch ästhetisch ansprechend gestaltet und verbindet das Kochen nahtlos mit dem Wohnraum. Dieser Bereich schafft eine harmonische Atmosphäre, die das Familienleben bereichert.

Drei Schlafzimmer, Ankleidezimmer und Arbeitszimmer

In diesem Einfamilienhaus finden Sie insgesamt drei komfortable Schlafzimmer, darunter ein Elternschlafzimmer mit einem begehbaren Ankleidezimmer, das Stil und Funktionalität vereint. Für Ihre Arbeit oder kreative Projekte steht Ihnen ein Arbeitszimmer zur Verfügung, das Ihnen Flexibilität bietet. Hier können Sie ungestört Ihrer beruflichen Tätigkeit nachgehen oder persönlichen Hobbies frönen.

Ihre Traumimmobilie nach Maß gestalten

Bitte beachten Sie, dass die obigen Beschreibungen und Bilder lediglich Beispiele darstellen. Dieses Einfamilienhaus ist nach Ihren individuellen Wünschen anpassbar. Kontaktieren Sie uns, um Ihr Traumhaus zu gestalten.

163m² Gesamtwohnfläche

Abmessungen
Länge 13.49m
Breite 10.49m
Wohn-/Nutzfläche
Kellergeschoss 79.1m²
Erdgeschoss 87.62m²
Dachgeschoss 75.42m²
Gesamtwohnfläche 163m²