MHPL_SATTEL_59_VAR_klein1.jpg
S_059_S.jpg
S_059_EG_VER.jpg
S_059_DG_VER.jpg
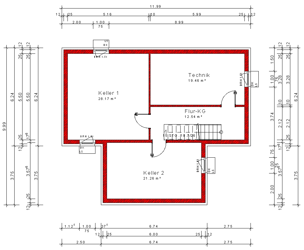
S_059_KG.jpg
S_059_A1.jpg
MHPL_SATTEL_59_VAR_klein1.jpg
S_059_S.jpg
S_059_EG_VER.jpg
S_059_DG_VER.jpg
S_059_KG.jpg
S_059_A1.jpg

V_01 S_059

Zeitloses Pultdach-Einfamilienhaus

  • Arbeitszimmer im Obergeschoss
  • Modernes Design und große Fenster
  • Möglichkeit zur individuellen Anpassung.

Ein Einfamilienhaus mit zeitlosem Pultdach


Herzlich willkommen in diesem einladenden Einfamilienhaus, das sich durch sein zeitloses Pultdach und modernes Design auszeichnet. Mit einer großzügigen Wohnfläche von 158 Quadratmetern erwartet Sie hier ein gemütliches Zuhause, das zugleich stilvoll und funktional gestaltet ist. Die klaren Linien und großen Fenster verleihen der Architektur einen zeitgemäßen Charme.

Großer Wohn- und Essbereich mit Terrassenzugang

Der weitläufige Wohn- und Essbereich bildet das Herzstück dieses Hauses. Hier können Sie Ihre Gäste empfangen und gemeinsame Mahlzeiten in einem einladenden Ambiente genießen. Der durchdachte Grundriss ermöglicht einen nahtlosen Übergang zur Küche und den Zugang zur Terrasse, die Ihnen die Freuden des Outdoor-Lebens näherbringt.

Zwei Schlafzimmer, Arbeitszimmer und Gäste-WC

In diesem Einfamilienhaus finden Sie zwei komfortable Schlafzimmer, die Ihnen und Ihren Gästen Ruhe und Privatsphäre bieten. Darüber hinaus verfügt das Obergeschoss über ein helles Arbeitszimmer, das sich ideal für Ihr Home-Office oder kreative Projekte eignet. Ein Gäste-WC rundet die Annehmlichkeiten dieses Hauses ab und sorgt für zusätzlichen Komfort.

Ihre Traumimmobilie nach Maß gestalten

Bitte beachten Sie, dass die obigen Beschreibungen und Bilder lediglich Beispiele darstellen. Dieses Einfamilienhaus ist nach Ihren individuellen Wünschen anpassbar. Kontaktieren Sie uns, um Ihr Traumhaus zu gestalten.

159m² Gesamtwohnfläche

Abmessungen
Länge 11.99m
Breite 9.99m
Wohn-/Nutzfläche
Kellergeschoss 81.43m²
Erdgeschoss 79.79m²
Dachgeschoss 78.79m²
Gesamtwohnfläche 159m²