MHPL_SATTEL_93_VAR_klein1.jpg
S_093_S.jpg
S_093_EG_VER.jpg
S_093_DG_VER.jpg
S_093_KG.jpg
S_093_A1.jpg
MHPL_SATTEL_93_VAR_klein1.jpg
S_093_S.jpg
S_093_EG_VER.jpg
S_093_DG_VER.jpg
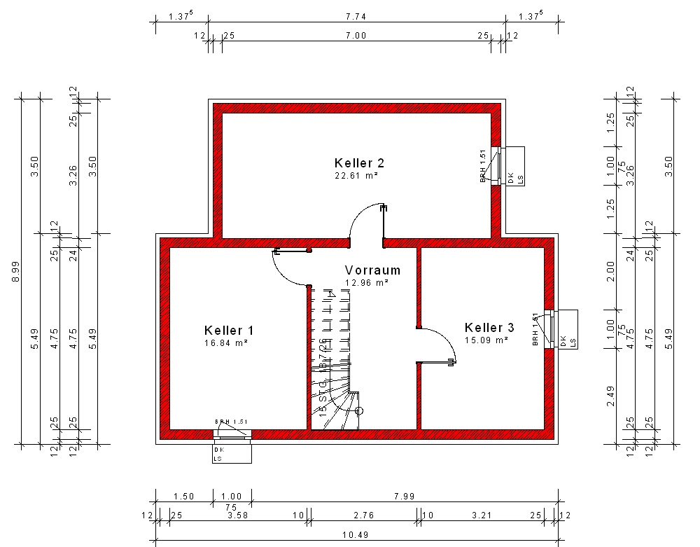
S_093_KG.jpg
S_093_A1.jpg

V_05 S_093

Offener Wohnbereich mit Terrassenzugang

  • Geräumiger Hauswirtschaftsraum (HWR)
  • Komfortables Bad mit Badewanne, Dusche und Fenster
  • Vielseitiger Keller mit drei separaten Räumen

Lichtdurchflutetes Einfamilienhaus mit Pultdach:


Entdecken Sie ein modernes Einfamilienhaus mit einem ansprechenden Pultdach und großzügigen 130,01m² Wohnfläche, das höchsten Wohnkomfort verspricht.

Offener Wohnbereich mit Terrassenzugang:

Das Herzstück dieses Hauses bildet das zusammenhängende Wohn-, Ess- und Küchenareal. Hier erleben Sie ein offenes Raumkonzept, das nicht nur Großzügigkeit ausstrahlt, sondern auch einen nahtlosen Übergang zur Terrasse ermöglicht. Das Wohnzimmer beeindruckt mit drei bodentiefen Fenstern, die den Raum mit natürlichem Licht durchfluten.

Komfortable Ausstattung mit geräumigem HWR:

Der Hauswirtschaftsraum (HWR) bietet zusätzlichen Komfort und Stauraum für Ihre Bedürfnisse. Ein weiteres Highlight ist das Badezimmer mit einer Badewanne, Dusche und einem Fenster für eine angenehme Belüftung. Ein separates WC mit Fenster vervollständigt die komfortable Ausstattung dieses Einfamilienhauses.

Vielseitiger Keller mit separaten Räumen:

Der Keller des Hauses überrascht mit drei separaten Räumen, die flexibel genutzt werden können. Ob als Hobbyraum, Büro oder zusätzlicher Stauraum – hier haben Sie die Freiheit, den Raum nach Ihren individuellen Bedürfnissen zu gestalten.

Ihre Traumimmobilie nach Maß gestalten

Bitte beachten Sie, dass die obigen Beschreibungen und Bilder lediglich Beispiele darstellen. Dieses Einfamilienhaus ist nach Ihren individuellen Wünschen anpassbar. Kontaktieren Sie uns, um Ihr Traumhaus zu gestalten.

130m² Gesamtwohnfläche

Abmessungen
Länge 10.49m
Breite 8.99m
Wohn-/Nutzfläche
Kellergeschoss 67.5m²
Erdgeschoss 65.42m²
Dachgeschoss 64.59m²
Gesamtwohnfläche 130m²