MHPL_SATTEL_177_VAR_klein1.jpg
S_177_S.jpg
S_177_EG_VER.jpg
S_177_DG_VER.jpg
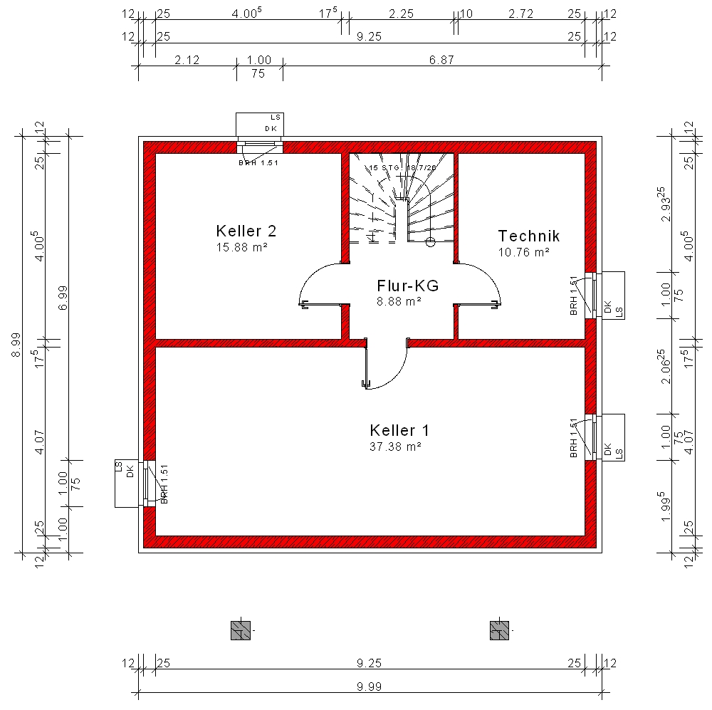
S_177_KG.jpg
S_177_A3.jpg
MHPL_SATTEL_177_VAR_klein1.jpg
S_177_S.jpg
S_177_EG_VER.jpg
S_177_DG_VER.jpg
S_177_KG.jpg
S_177_A3.jpg

V_12 S_177

Offener Wohnbereich mit Zugang zur Terrasse

  • Zwei Kinderzimmer, eines mit geteiltem Balkon mit dem Elternzimmer
  • Elternzimmer mit geteiltem Balkon
  • Flexibler Keller mit Technikraum und zusätzlichen Räumen

Modernes Einfamilienhaus mit Pultdach:


Erleben Sie zeitgemäßen Wohnkomfort in diesem modernen Einfamilienhaus mit einem einladenden Pultdach und einer großzügigen Wohnfläche von 145,33 m². Das durchdachte Design und die intelligente Raumaufteilung machen dieses Haus zu einem Ort der Entspannung und Gemütlichkeit.

Offener Wohnbereich und Familienfreundlichkeit:

Treten Sie ein in den offenen Wohn-, Ess- und Küchenbereich, der nicht nur viel Platz bietet, sondern auch einen direkten Zugang zur Terrasse ermöglicht. Der Hauswirtschaftsraum (HWR) gleich am Hauseingang sorgt für zusätzlichen Komfort im Alltag. Im Obergeschoss erwartet Sie ein geräumiges Badezimmer mit einer großen Badewanne und Dusche, das zum Verweilen und Entspannen einlädt.

Familiäre Atmosphäre mit geteiltem Balkon:

Die zweite Etage bietet zwei Kinderzimmer und ein Elternzimmer. Ein Kinderzimmer teilt sich einen Balkon mit dem Elternzimmer, was eine besondere familiäre Atmosphäre schafft und es Ihnen ermöglicht, die frische Luft und den Ausblick gemeinsam zu genießen. Der Keller des Hauses bietet nicht nur einen Technikraum, sondern auch zwei zusätzliche Räume für flexible Nutzungsmöglichkeiten.

Ihre Traumimmobilie nach Maß gestalten

Bitte beachten Sie, dass die obigen Beschreibungen und Bilder lediglich Beispiele darstellen. Dieses Einfamilienhaus ist nach Ihren individuellen Wünschen anpassbar. Kontaktieren Sie uns, um Ihr Traumhaus zu gestalten.

145m² Gesamtwohnfläche

Abmessungen
Länge 9.99m
Breite 8.99m
Wohn-/Nutzfläche
Kellergeschoss 72.9m²
Erdgeschoss 70.62m²
Dachgeschoss 74.71m²
Gesamtwohnfläche 145m²