MHPL_SATTEL_236_VAR_klein1.jpg
S_236_S.jpg
S_236_EG_VER.jpg
S_236_DG_VER.jpg
S_236_KG.jpg

Warning: Undefined array key "BildName6" in /homepages/44/d824659835/htdocs/Ninox/listing/index.php on line 829
MHPL_SATTEL_236_VAR_klein1.jpg
S_236_S.jpg
S_236_EG_VER.jpg
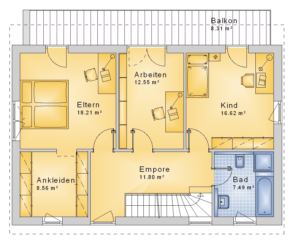
S_236_DG_VER.jpg
S_236_KG.jpg

V_21 S_236

158m² Gesamtwohnfläche

Abmessungen
Länge 11.99m
Breite 7.99m
Wohn-/Nutzfläche
Kellergeschoss 78.52m²
Erdgeschoss 74.77m²
Dachgeschoss 83.54m²
Gesamtwohnfläche 158m²