MHPL_SATTEL_381_Terrasse_klein.jpg
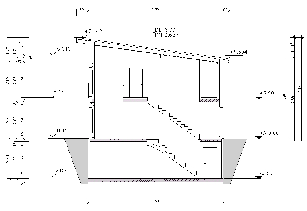
S_381_S.jpg
S_381_EG_VER.jpg
S_381_DG_VER.jpg
S_381_KG.jpg

Warning: Undefined array key "BildName6" in /homepages/44/d824659835/htdocs/Ninox/listing/index.php on line 829
MHPL_SATTEL_381_Terrasse_klein.jpg
S_381_S.jpg
S_381_EG_VER.jpg
S_381_DG_VER.jpg
S_381_KG.jpg

V_42 S_381

Moderne Architektur mit Pultdach

  • Separates Arbeitszimmer für mehr Flexibilität
  • Elegantes Elternzimmer mit Ankleidezimmer
  • Individuelle Anpassungsmöglichkeiten nach Ihren Wünschen

Exklusives Einfamilienhaus mit Pultdach


Erleben Sie ein exklusives Wohnambiente in diesem Einfamilienhaus mit einem beeindruckenden Flächenangebot von 181,68 m². Das moderne Pultdach verleiht der Architektur eine zeitgemäße Ästhetik und verspricht eine harmonische Verbindung von Komfort und Design.

Offener Wohnbereich mit besonderen Extras

Die Küche integriert sich perfekt in das großzügige Wohn- Esszimmer und bietet mit einer Kücheninsel sowie einem 15 m² großen Hauswirtschaftsraum zusätzlichen Komfort. Ein separates Arbeitszimmer schafft Raum für konzentriertes Arbeiten, während eine Terrasse den direkten Zugang zur Natur ermöglicht.

Elegante Details und Wohlfühlatmosphäre

Die zweite Etage überrascht mit einem weiteren Bad, ausgestattet mit Badewanne und Dusche. Das Elternzimmer besticht nicht nur durch Größe, sondern auch durch ein eigenes Ankleidezimmer. Eine Empore bietet Platz für einen Schreibtisch und vervollständigt das durchdachte Raumkonzept.

Ihre Traumimmobilie nach Maß gestalten

Bitte beachten Sie, dass die obigen Beschreibungen und Bilder lediglich Beispiele darstellen. Dieses Einfamilienhaus ist nach Ihren individuellen Wünschen anpassbar. Kontaktieren Sie uns, um Ihr Traumhaus zu gestalten.

182m² Gesamtwohnfläche

Abmessungen
Länge 13m
Breite 9.5m
Wohn-/Nutzfläche
Kellergeschoss 103.44m²
Erdgeschoss 95.83m²
Dachgeschoss 85.85m²
Gesamtwohnfläche 182m²