MHPL_SATTEL_435_klein1.jpg
S_435_S.jpg
S_435_EG_VER.jpg
S_435_DG_VER.jpg
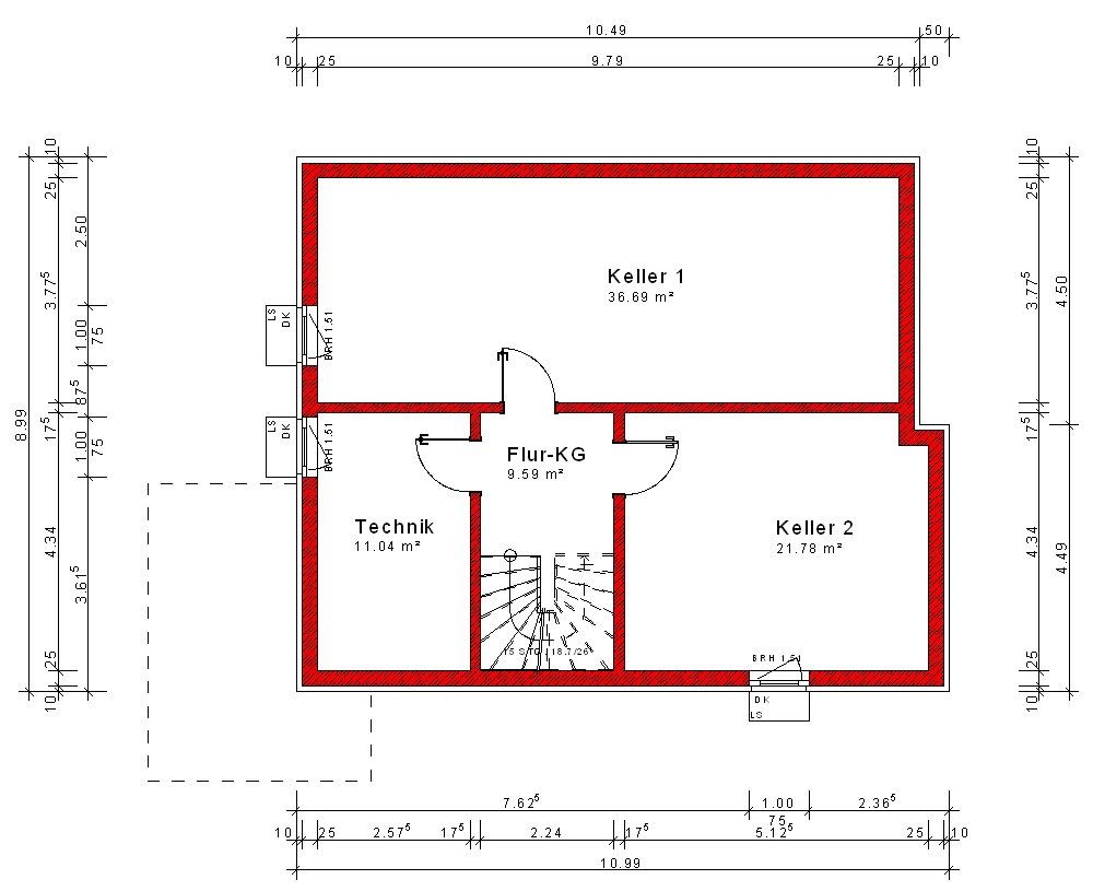
S_435_KG.jpg
S_435_A1.jpg
MHPL_SATTEL_435_klein1.jpg
S_435_S.jpg
S_435_EG_VER.jpg
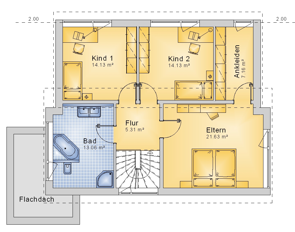
S_435_DG_VER.jpg
S_435_KG.jpg
S_435_A1.jpg

V_49 S_435

Lichtdurchflutetes Wohn- und Esszimmer mit Glasfronten

  • Komfortable Badezimmer mit Badewanne, Dusche und zwei Waschbecken
  • Privates Ankleidezimmer im Elternzimmer
  • Modernes Design mit Pultdach und durchdachter Raumplanung

Modernes Einfamilienhaus mit Pultdach:


Erleben Sie zeitgemäßen Wohnkomfort in diesem modernen Einfamilienhaus mit einem einladenden Pultdach und großzügigen 163,04 m² Wohnfläche. Die durchdachte Planung und hochwertige Ausstattung machen dieses Haus zu einem idealen Ort für Ihre individuellen Bedürfnisse.

Lichtdurchflutetes Wohn- und Esszimmer mit Glasfronten:

Das Wohn- Esszimmer mit integrierter Küche beeindruckt durch vier große Glasfronten in drei Himmelsrichtungen, die den Raum mit natürlichem Licht durchfluten und einen atemberaubenden Ausblick bieten. Der Zugang nach draußen ermöglicht eine nahtlose Verbindung zur Natur und schafft ein harmonisches Ambiente.

Abgegrenztes Arbeitszimmer (12 m²) für maximale Konzentration:

Das abgegrenzte Arbeitszimmer mit großzügigen 12 m² bietet den idealen Raum für konzentriertes Arbeiten mit zwei Arbeitsplätzen. Die klare Struktur und die Möglichkeit, sich ungestört auf die Arbeit zu fokussieren, machen dieses Zimmer zu einem Highlight für Berufstätige oder Studierende.

Komfortable Badezimmer und privates Ankleidezimmer:

Das Haus verfügt über ein WC sowie ein weiteres Bad mit Badewanne, Dusche und zwei Waschbecken. Das Elternzimmer bietet zusätzlich ein privates Ankleidezimmer, das für höchsten Komfort und Privatsphäre sorgt.

Ihre Traumimmobilie nach Maß gestalten

Bitte beachten Sie, dass die obigen Beschreibungen und Bilder lediglich Beispiele darstellen. Dieses Einfamilienhaus ist nach Ihren individuellen Wünschen anpassbar. Kontaktieren Sie uns, um Ihr Traumhaus zu gestalten.

163m² Gesamtwohnfläche

Abmessungen
Länge 13.49m
Breite 10.49m
Wohn-/Nutzfläche
Kellergeschoss 79.1m²
Erdgeschoss 87.62m²
Dachgeschoss 75.42m²
Gesamtwohnfläche 163m²