MHPL_STADT_03_Garten_klein1.jpg
ST_003_S.jpg
ST_003_EG_VER.jpg
ST_003_DG_VER.jpg
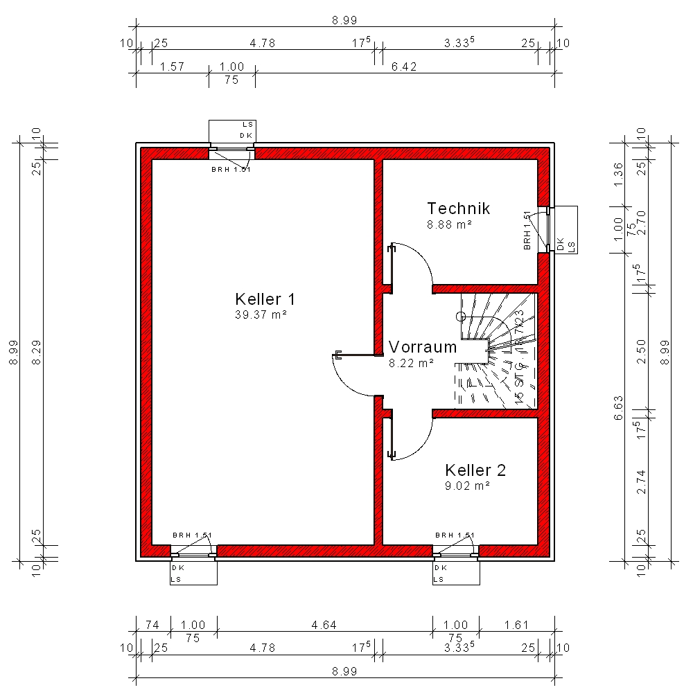
ST_003_KG.jpg
ST_003_A4.jpg
MHPL_STADT_03_Garten_klein1.jpg
ST_003_S.jpg
ST_003_EG_VER.jpg
ST_003_DG_VER.jpg
ST_003_KG.jpg
ST_003_A4.jpg

ST_03

Stilvolles Stadthaus mit Walmdach

  • Drei Schlafzimmer und Entspannungsbad
  • Individuelle Anpassung nach Ihren Wünschen möglich

Ein exklusives Stadthaus mit Walmdach


In diesem exquisiten Stadthaus mit einem charmanten Walmdach erwartet Sie eine einzigartige Mischung aus urbanem Lebensstil und modernem Wohnkomfort. Mit großzügigen 124 Quadratmetern Wohnfläche bietet dieses Haus alle Annehmlichkeiten, die Sie für ein erstklassiges Leben in der Stadt benötigen. Das markante Walmdach verleiht der Immobilie eine zeitlose Eleganz und integriert sich nahtlos in die städtische Umgebung, ohne dabei den zeitgemäßen Wohnkomfort zu vernachlässigen.

Offener Wohn- und Essbereich für gesellschaftliches Miteinander

Der großzügige Wohn- und Essbereich mit einer offenen Küche bildet das Herzstück dieses Stadthauses. Hier können Sie Familie und Freunde in einer einladenden und modernen Umgebung empfangen. Die offene Raumgestaltung schafft ein helles und luftiges Ambiente, in dem Sie gemeinsame Mahlzeiten zubereiten und gemütliche Abende verbringen können. Dieser Raum wurde mit viel Liebe zum Detail gestaltet, um Ihnen ein zeitgemäßes und komfortables Wohnerlebnis zu bieten.

Drei Schlafzimmer und ein Entspannungsbad

Das Stadthaus verfügt über drei großzügige Schlafzimmer, die Ihnen ausreichend Privatsphäre und Erholung bieten. Das Badezimmer ist mit einer einladenden Badewanne ausgestattet, die sich ideal für entspannende Momente nach einem langen Tag eignet. Zusätzlich stehen Ihnen ein Gäste-WC und ein weiteres Gästezimmer zur Verfügung, das vielseitig als Arbeitszimmer oder Übernachtungsmöglichkeit für Besucher genutzt werden kann.

Ihre Traumimmobilie nach Maß gestalten

Bitte beachten Sie, dass die obigen Beschreibungen und Bilder lediglich Beispiele darstellen. Dieses Stadthaus ist nach Ihren individuellen Wünschen anpassbar. Kontaktieren Sie uns, um Ihr Traumhaus zu gestalten. Hier erhalten Sie die einzigartige Gelegenheit, dieses Haus nach Ihren eigenen Vorstellungen zu gestalten und es zu Ihrem ganz persönlichen urbanen Rückzugsort zu machen. Verwirklichen Sie Ihr Traumhaus in der Stadt und setzen Sie Ihre individuellen Ideen und Bedürfnisse um.

120m² Gesamtwohnfläche

Abmessungen
Länge 8.99m
Breite 8.99m
Wohn-/Nutzfläche
Kellergeschoss 65.49m²
Erdgeschoss 60.48m²
Dachgeschoss 59.44m²
Gesamtwohnfläche 120m²