MHPL_STADT_06_VG_klein1.jpg
ST_006_S.jpg
ST_006G_EG_VER.jpg
ST_006G_DG_VER.jpg
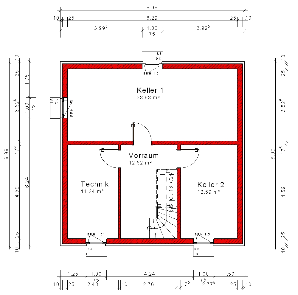
ST_006_KG.jpg
ST_006G_A1.jpg
MHPL_STADT_06_VG_klein1.jpg
ST_006_S.jpg
ST_006G_EG_VER.jpg
ST_006G_DG_VER.jpg
ST_006_KG.jpg
ST_006G_A1.jpg

ST_06

Durchdachte Raumaufteilung mit Keller und flexiblen Räumen

  • Großzügige zweite Etage mit drei Zimmern
  • Komfortables Bad mit Dusche, Badewanne und zwei Waschbecken
  • Individuelle Anpassungsmöglichkeiten für Ihre Traumimmobilie

Modernes Stadthaus mit durchdachter Gestaltung


Erleben Sie zeitgemäßes Stadtleben in diesem modernen Stadthaus, das mit seinen 119,58 m² eine durchdachte Raumaufteilung bietet. Der Keller umfasst nicht nur einen Technikraum, sondern auch zwei weitere Räume, die flexibel genutzt werden können. Der Hauswirtschaftsraum direkt am Hauseingang sorgt für praktischen Komfort.

Offenes Wohnkonzept mit Zugang zur Terrasse

Im Erdgeschoss erwartet Sie ein offenes Wohn- und Esszimmer mit separater Küche, das durch bodentiefe Fenster zu zwei Himmelsrichtungen lichtdurchflutet ist. Der Zugang zur Terrasse erweitert den Wohnraum ins Freie und schafft eine Verbindung zwischen Innen- und Außenbereich. Ein separates WC rundet das Erdgeschoss ab.

Komfortable Zweite Etage mit drei Zimmern und großzügigem Bad

Die zweite Etage präsentiert sich mit drei Zimmern und einem großzügigen Bad, ausgestattet mit Dusche, Badewanne und zwei Waschbecken. Hier findet jede Person ihren individuellen Rückzugsort. Die durchdachte Gestaltung betont den modernen Charakter dieses Stadthauses.

Ihre Traumimmobilie nach Maß gestalten

Bitte beachten Sie, dass die obigen Beschreibungen und Bilder lediglich Beispiele darstellen. Dieses Stadthaus ist nach Ihren individuellen Wünschen anpassbar. Kontaktieren Sie uns, um Ihr Traumhaus zu gestalten.

120m² Gesamtwohnfläche

Abmessungen
Länge 8.99m
Breite 8.99m
Wohn-/Nutzfläche
Kellergeschoss 65.33m²
Erdgeschoss 62.55m²
Obergeschoss 57.03m²
Gesamtwohnfläche 120m²