MHPL_STADT_12_VAR_klein1.jpg
ST_012_S.jpg
ST_012_EG_VER.jpg
ST_012_DG_VER.jpg
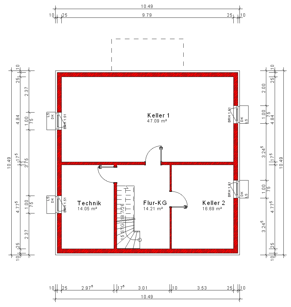
ST_012_KG.jpg
ST_012_A1.jpg
MHPL_STADT_12_VAR_klein1.jpg
ST_012_S.jpg
ST_012_EG_VER.jpg
ST_012_DG_VER.jpg
ST_012_KG.jpg
ST_012_A1.jpg

ST_12

186m² Gesamtwohnfläche

Abmessungen
Länge 12.24m
Breite 10.49m
Wohn-/Nutzfläche
Kellergeschoss 92.04m²
Erdgeschoss 94.3m²
Obergeschoss 92.06m²
Gesamtwohnfläche 186m²