MHPL_STADT_15_VAR_klein1.jpg
ST_015_S.jpg
ST_015_EG_VER.jpg
ST_015_DG_VER.jpg
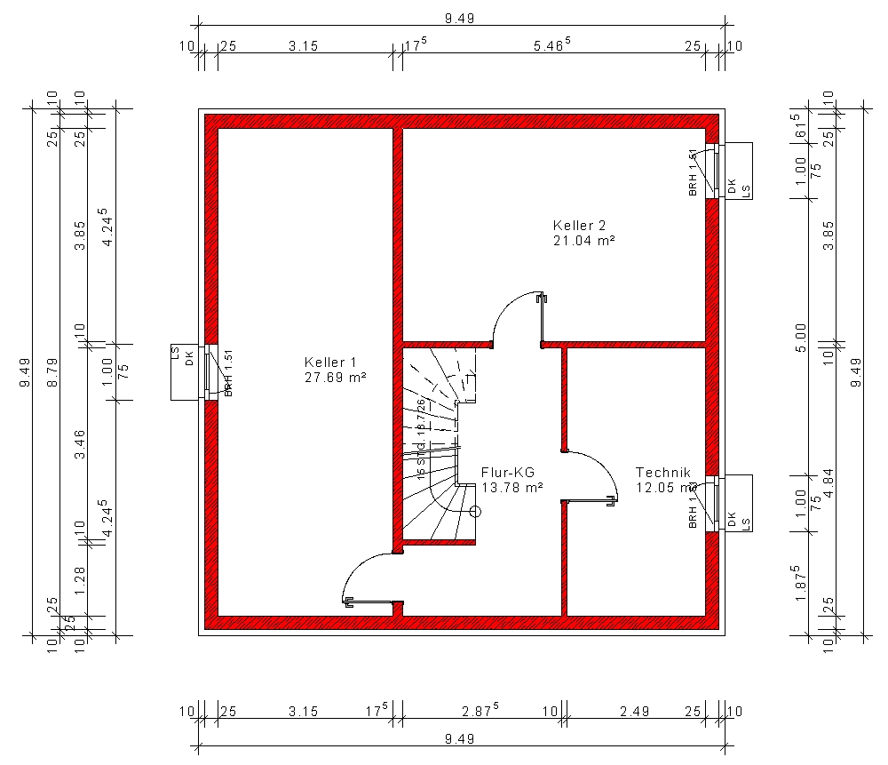
ST_015_KG.jpg
ST_015_A1.jpg
MHPL_STADT_15_VAR_klein1.jpg
ST_015_S.jpg
ST_015_EG_VER.jpg
ST_015_DG_VER.jpg
ST_015_KG.jpg
ST_015_A1.jpg

ST_15

Bodentiefe Fenster für maximale Helligkeit

  • Offener Wohn- Essbereich mit Zugang zur Terrasse
  • Komfortable Zweite Etage mit Kinder- und Elternzimmer
  • Möglichkeiten zur individuellen Anpassung Ihrer Traumimmobilie

Moderne Stadtvilla mit zeitlosem Design


Erleben Sie modernes Wohnen in dieser beeindruckenden Stadtvilla mit einer Wohnfläche von 138,84 m². Die bodentiefen Fenster durchfluten die Räume mit natürlichem Licht und schaffen eine einladende Atmosphäre. Der Keller beherbergt nicht nur einen Technikraum, sondern auch zwei zusätzliche Räume, die flexibel genutzt werden können.

Offener Wohn- Essbereich mit Zugang zur Terrasse

Das Erdgeschoss präsentiert sich mit einem großzügigen Wohn- Essbereich, der durch bodentiefe Fenster eine harmonische Verbindung zur Terrasse schafft. Ein Gästezimmer bietet die Möglichkeit, Besuch in angenehmer Atmosphäre zu empfangen. Der Hauswirtschaftsraum, direkt an die Küche angegliedert, sorgt für zusätzlichen Komfort im Alltag.

Komfortable Zweite Etage mit Eltern- und Kinderzimmer

Die zweite Etage verfügt über zwei Kinderzimmer und ein Elternzimmer, die mit durchdachtem Design und ausreichend Platz überzeugen. Ein modernes Bad mit Badewanne und Dusche rundet diese Etage ab, und die großen Fenster sorgen für eine lichtdurchflutete Umgebung.

Ihre Traumimmobilie nach Maß gestalten

Bitte beachten Sie, dass die obigen Beschreibungen und Bilder lediglich Beispiele darstellen. Diese Stadtvilla ist nach Ihren individuellen Wünschen anpassbar. Kontaktieren Sie uns, um Ihr Traumhaus zu gestalten.

139m² Gesamtwohnfläche

Abmessungen
Länge 9.49m
Breite 9.49m
Wohn-/Nutzfläche
Kellergeschoss 73.8m²
Erdgeschoss 68.84m²
Obergeschoss 70m²
Gesamtwohnfläche 139m²