MHPL_STADT_26_Seite_klein1.jpg
ST_026_S.jpg
ST_026_EG_VER.jpg
ST_026_DG_VER.jpg
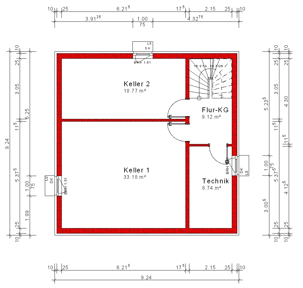
ST_026_KG.jpg
MHPL_STADT_26_Eingang_klein1.jpg
MHPL_STADT_26_Seite_klein1.jpg
ST_026_S.jpg
ST_026_EG_VER.jpg
ST_026_DG_VER.jpg
ST_026_KG.jpg
MHPL_STADT_26_Eingang_klein1.jpg

ST_26

Durchdachte Raumgestaltung mit großem Wohnbereich

  • Lichtdurchflutete Zweite Etage mit drei Zimmern
  • Modernes Bad mit Badewanne und Dusche
  • Individuelle Anpassungsmöglichkeiten für Ihre Traumimmobilie

Modernes Einfamilienhaus mit durchdachter Raumgestaltung


Erleben Sie zeitgemäßen Wohnkomfort in diesem modernen Einfamilienhaus. Mit großzügigen 129,98 m² bietet es nicht nur ausreichend Platz, sondern auch eine durchdachte Raumaufteilung. Der Keller beherbergt nicht nur einen Technikraum, sondern auch zwei zusätzliche Räume, die flexibel genutzt werden können.

Offenes Wohnkonzept mit direktem Zugang zur Terrasse

Im Erdgeschoss erwartet Sie ein offenes Wohn- und Esszimmer mit direktem Zugang zur Küche und Terrasse. Große Schiebetüren schaffen eine harmonische Verbindung zwischen Innen- und Außenbereich. Eine Abstellkammer und ein Hauswirtschaftsraum sorgen für zusätzlichen Komfort im Alltag, während ein separates WC die Funktionalität des Erdgeschosses abrundet.

Lichtdurchflutete Zweite Etage mit drei Zimmern

Die zweite Etage präsentiert sich mit drei Zimmern, die alle von großzügigen Fensterfronten profitieren. Diese schaffen eine helle und freundliche Atmosphäre in jedem Raum. Ein weiteres Highlight dieser Etage ist das Bad, das mit einer Badewanne und Dusche ausgestattet ist.

Ihre Traumimmobilie nach Maß gestalten

Bitte beachten Sie, dass die obigen Beschreibungen und Bilder lediglich Beispiele darstellen. Dieses Einfamilienhaus ist nach Ihren individuellen Wünschen anpassbar. Kontaktieren Sie uns, um Ihr Traumhaus zu gestalten.

130m² Gesamtwohnfläche

Abmessungen
Länge 9.45m
Breite 9.45m
Wohn-/Nutzfläche
Kellergeschoss 69.81m²
Erdgeschoss 65.49m²
Obergeschoss 64.49m²
Gesamtwohnfläche 130m²