MHPL_SATTEL_125_klein1.jpg
S_125_S.jpg
S_125_EG_VER.jpg
S_125_DG_VER.jpg
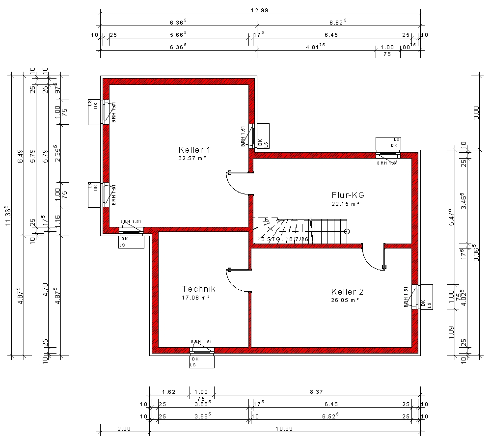
S_125_KG.jpg
S_125_A3.jpg
MHPL_SATTEL_125_klein1.jpg
S_125_S.jpg
S_125_EG_VER.jpg
S_125_DG_VER.jpg
S_125_KG.jpg
S_125_A3.jpg

V_09 S_125

Klares, zeitgemäßes Bauhaus-Design

  • Offene Küche mit zentraler Kochinsel
  • Einraumwohnung mit eigenem Eingang
  • Elternzimmer mit luxuriöser Ankleide

Ein zeitloses Bauhaus-Einfamilienhaus mit moderner Fassade


In Ihrem neuen Zuhause erwartet Sie ein Bauhaus-Einfamilienhaus mit einem klaren, zeitgemäßen Design. Das Flachdach verleiht dem Gebäude eine moderne Silhouette, während die moderne Außenfassade mit großzügigen Fenstern für ein helles und offenes Ambiente sorgt. Mit einer Wohnfläche von 164,77 m² bietet das Haus ausreichend Platz für Sie und Ihre Familie.

Durchdachter Grundriss für Komfort und Funktionalität

Das Erdgeschoss beeindruckt mit einem großzügigen Wohn- und Esszimmer, das nahtlos in eine offene Küche mit einer zentralen Kochinsel übergeht. Ein Gäste-WC und ein Hauswirtschaftsraum sorgen für zusätzlichen Komfort im Alltag. Besonders praktisch ist die Einraumwohnung mit eigenem Eingang und offener Küche, die Flexibilität und individuelle Nutzungsmöglichkeiten bietet.

Gemütliches Obergeschoss mit privaten Rückzugsorten

Im Obergeschoss finden Sie drei Schlafzimmer, darunter ein Elternzimmer mit Ankleidezimmer für zusätzlichen Luxus. Das Badezimmer überzeugt mit einer Kombination aus Dusche und Badewanne. Eine Abstellkammer bietet Platz für die praktische Aufbewahrung von persönlichen Gegenständen. Dieses durchdachte Design schafft eine behagliche Atmosphäre für Ihre persönlichen Rückzugsorte.

Ihre Traumimmobilie nach Maß gestalten

Bitte beachten Sie, dass die obigen Beschreibungen und Bilder lediglich Beispiele darstellen. Dieses Einfamilienhaus ist nach Ihren individuellen Wünschen anpassbar. Kontaktieren Sie uns, um Ihr Traumhaus zu gestalten.

165m² Gesamtwohnfläche

Abmessungen
Länge 12.99m
Breite 11.365m
Wohn-/Nutzfläche
Kellergeschoss 97.83m²
Erdgeschoss 93.24m²
Obergeschoss 71.53m²
Gesamtwohnfläche 165m²