MHPL_SATTEL_362_klein1.jpg
S_362_S.jpg
S_362_EG_VER.jpg
S_362_DG_VER.jpg
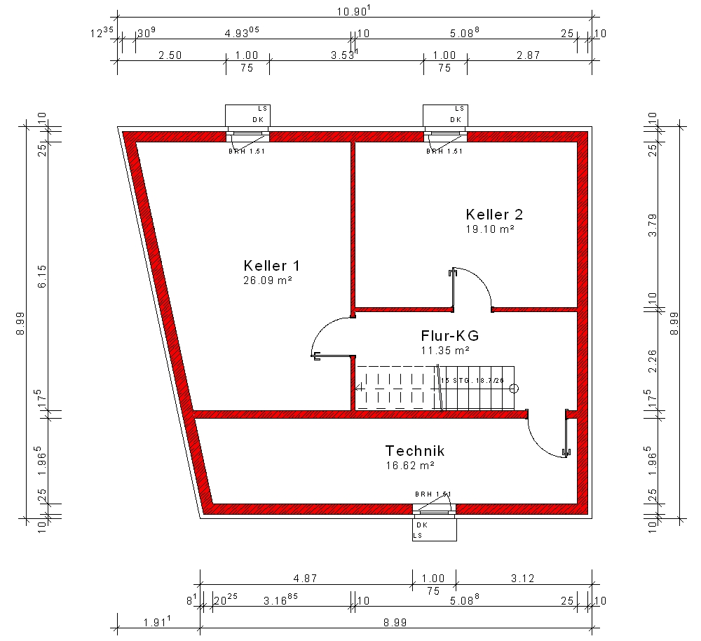
S_362_KG.jpg
S_362_A4.jpg
MHPL_SATTEL_362_klein1.jpg
S_362_S.jpg
S_362_EG_VER.jpg
S_362_DG_VER.jpg
S_362_KG.jpg
S_362_A4.jpg

V_68 S_362

Innovatives Bauhaus-Design mit asymmetrischem Grundriss

  • Praktische Raumaufteilung im Erdgeschoss mit Diele und Hauswirtschaftsraum
  • Wohlfühl-Oase im Obergeschoss mit Ankleidezimmer
  • Möglichkeit zur individuellen Gestaltung Ihrer Traumimmobilie

Ein innovatives Bauhaus-Einfamilienhaus mit Flachdach


Willkommen in Ihrem neuen Zuhause, das durch modernes Design und raffinierte Architektur besticht. Dieses Bauhaus-Einfamilienhaus mit asymmetrischem Grundriss bietet mit seinen 139,99 m² Wohnfläche eine harmonische Verbindung von Ästhetik und Funktionalität. Das Flachdach verleiht der Immobilie eine zeitgemäße Note, während die moderne Außenfassade mit großzügigen Fensterfronten für eine lichtdurchflutete Atmosphäre sorgt.

Offener Wohnbereich und durchdachte Raumaufteilung im Erdgeschoss

Betreten Sie das Haus durch die einladende Diele mit einem Garderobenbereich, der den Übergang in Ihr neues Zuhause angenehm gestaltet. Das Erdgeschoss beeindruckt mit einem großzügigen Wohn- und Esszimmer, das nahtlos in eine offene Küche übergeht. Ein Gäste-WC, ein praktischer Hauswirtschaftsraum und der Zugang zur überdachten Terrasse vervollständigen die durchdachte Raumaufteilung dieses Einfamilienhauses.

Wohlfühl-Oase im Obergeschoss mit Ankleidezimmer

Das Obergeschoss bietet mit drei Schlafzimmern eine ideale Rückzugsmöglichkeit für die ganze Familie. Ein zusätzliches Ankleidezimmer schafft Platz für Ihre persönliche Garderobe und komplettiert die Schlafbereiche. Das großzügige Bad mit Dusche und Badewanne lädt zu entspannten Momenten ein und rundet das Wohlfühlkonzept dieses innovativen Hauses ab.

Ihre Traumimmobilie nach Maß gestalten

Bitte beachten Sie, dass die obigen Beschreibungen und Bilder lediglich Beispiele darstellen. Dieses Einfamilienhaus ist nach Ihren individuellen Wünschen anpassbar. Kontaktieren Sie uns, um Ihr Traumhaus zu gestalten.

140m² Gesamtwohnfläche

Abmessungen
Länge 10.901m
Breite 8.99m
Wohn-/Nutzfläche
Kellergeschoss 73.16m²
Erdgeschoss 71.05m²
Obergeschoss 68.94m²
Gesamtwohnfläche 140m²