MHPL_SATTEL_432_klein1.jpg
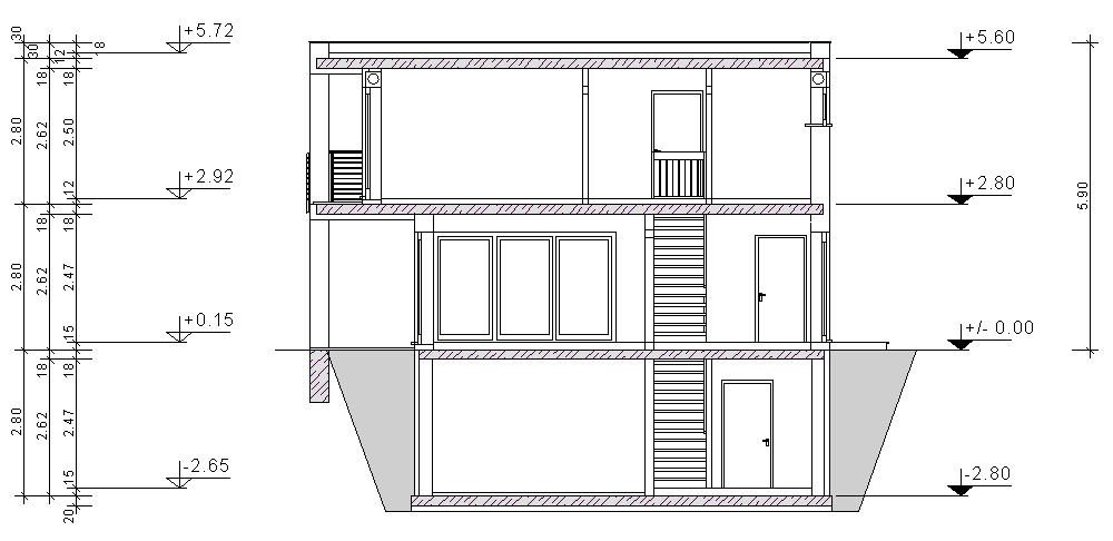
S_432_S.jpg
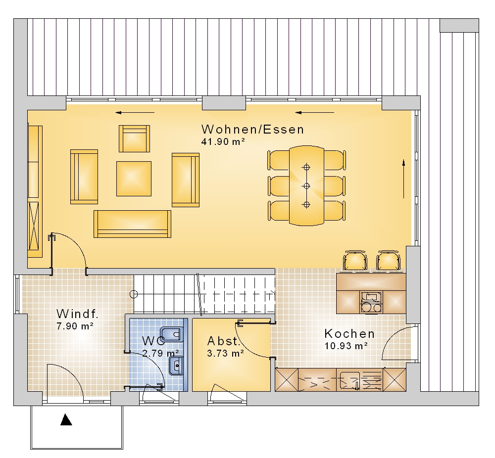
S_432_EG_VER.jpg
S_432_DG_VER.jpg
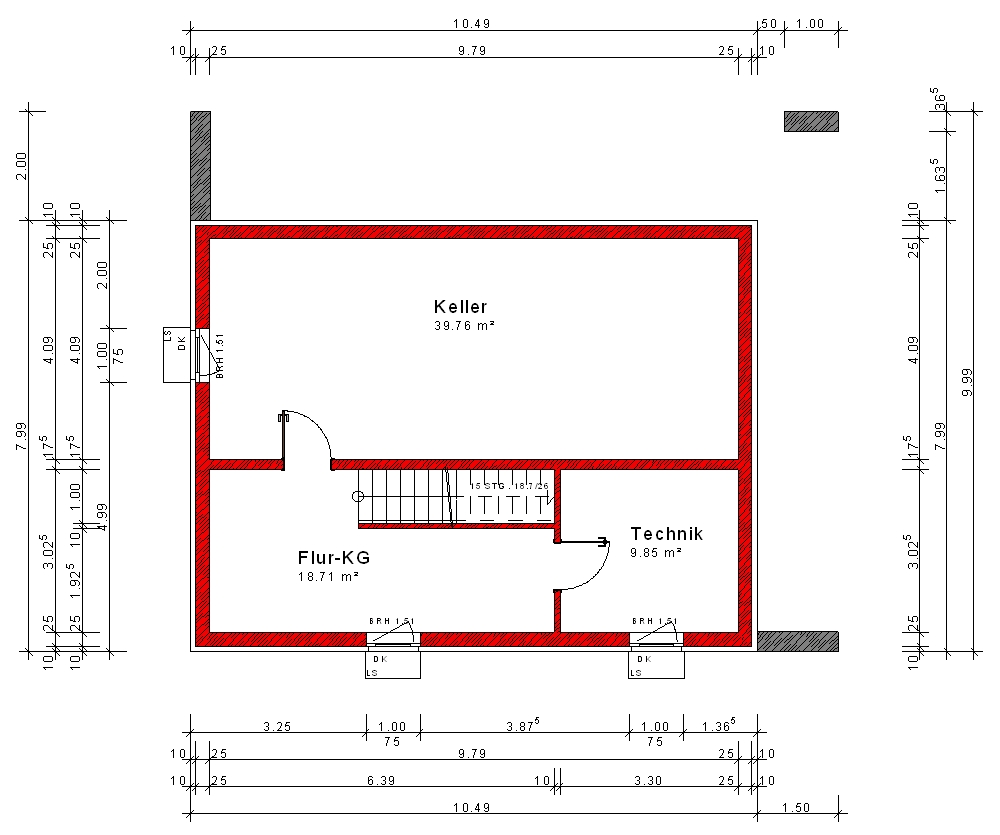
S_432_KG.jpg

Warning: Undefined array key "BildName6" in /homepages/44/d824659835/htdocs/Ninox/listing/index.php on line 829
MHPL_SATTEL_432_klein1.jpg
S_432_S.jpg
S_432_EG_VER.jpg
S_432_DG_VER.jpg
S_432_KG.jpg

V_90 S_432

148m² Gesamtwohnfläche

Abmessungen
Länge 11.99m
Breite 9.99m
Wohn-/Nutzfläche
Kellergeschoss 68.32m²
Erdgeschoss 67.25m²
Obergeschoss 80.78m²
Gesamtwohnfläche 148m²