MHPL_SATTEL_456_klein1.jpg
S_456_S.jpg
S_456_EG_VER.jpg
S_456_DG_VER.jpg
S_456_KG.jpg
S_456_A3.jpg
MHPL_SATTEL_456_klein1.jpg
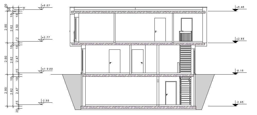
S_456_S.jpg
S_456_EG_VER.jpg
S_456_DG_VER.jpg
S_456_KG.jpg
S_456_A3.jpg

V_98 S_456

Exklusives Bauhausdesign mit L-förmigem Grundriss

  • Luxuriöses Obergeschoss mit Dachterrasse und Weitblick
  • Moderne Architektur mit Flachdach und großen Fensterfronten
  • Anpassbar nach individuellen Wünschen für Ihr Traumhaus

Exklusives Bauhausdesign für höchsten Wohnkomfort


Willkommen in Ihrer exklusiven Bauhaus/Stadtvilla/Einfamilienhaus-Kombination mit einer großzügigen Wohnfläche von 211,08 m². Das moderne Flachdach verleiht dem Haus eine zeitgemäße Note, während die L-förmige Grundrissgestaltung eine harmonische Verbindung von Ästhetik und Funktionalität schafft. Die moderne Außenfassade mit großzügigen Fensterfronten betont den offenen Charakter des Hauses.

Optimale Raumnutzung im Erdgeschoss für ein harmonisches Zuhause

Das Erdgeschoss beeindruckt mit einem großzügigen Wohn- und Esszimmer, das nahtlos mit der offenen Küche und einer zentralen Kochinsel verbunden ist. Ein Schlafzimmer, ein Bad mit Dusche und ein Gäste-WC vervollständigen die praktische Ausstattung. Hier erleben Sie modernes Wohnen in einer angenehmen Atmosphäre.

Luxuriöses Obergeschoss mit Dachterrasse und Weitblick

Das Obergeschoss präsentiert sich als private Wohnoase mit vier Schlafzimmern, einem großzügigen Bad inklusive Dusche und Badewanne sowie einer geräumigen Empore. Die Dachterrasse bietet einen herrlichen Ausblick, während der Luftraum ins Erdgeschoss eine besondere architektonische Note setzt. Hier erwartet Sie Wohnluxus auf höchstem Niveau.

Ihre Traumimmobilie nach Maß gestalten

Bitte beachten Sie, dass die obigen Beschreibungen und Bilder lediglich Beispiele darstellen. Dieses Einfamilienhaus ist nach Ihren individuellen Wünschen anpassbar. Kontaktieren Sie uns, um Ihr Traumhaus zu gestalten.

211m² Gesamtwohnfläche

Abmessungen
Länge 11m
Breite 10m
Wohn-/Nutzfläche
Kellergeschoss 91.05m²
Erdgeschoss 99.26m²
Obergeschoss 111.82m²
Gesamtwohnfläche 211m²