MHPL_DHH_05_VAR_Garten_klein1.jpg
DHH_05_S.jpg
DHH_05_EG_EPF.jpg
DHH_05_DG_EPF.jpg
DHH_05_KG.jpg
DHH_05G_A4.jpg
MHPL_DHH_05_VAR_Garten_klein1.jpg
DHH_05_S.jpg
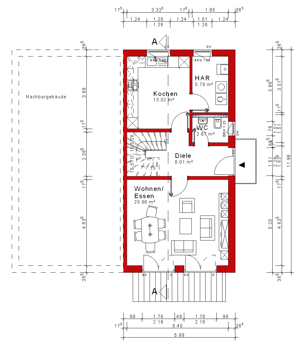
DHH_05_EG_EPF.jpg
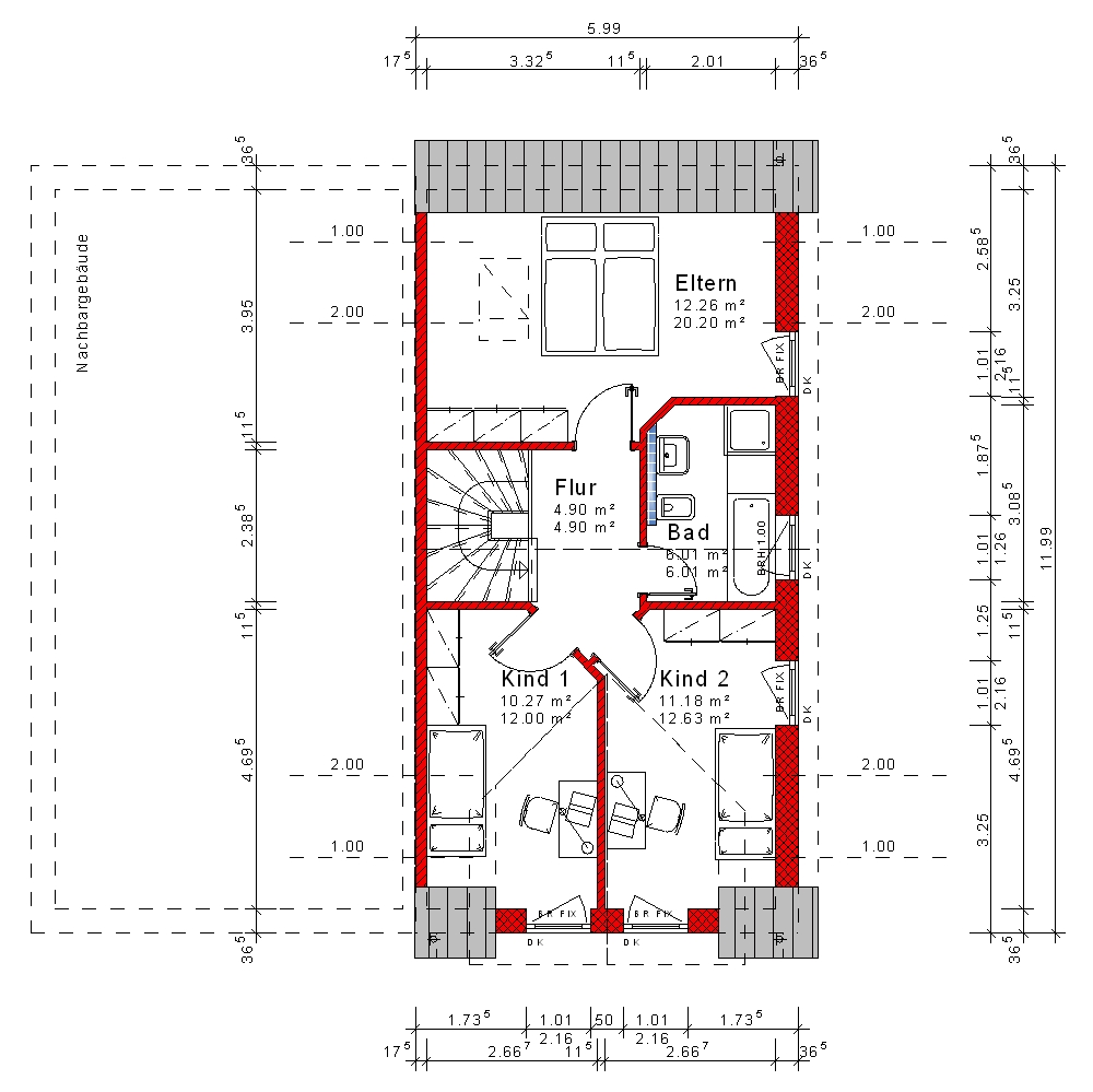
DHH_05_DG_EPF.jpg
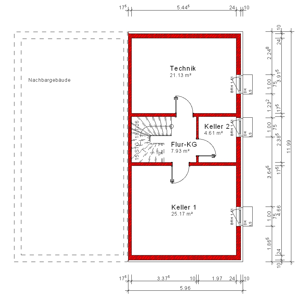
DHH_05_KG.jpg
DHH_05G_A4.jpg

DHH_05

- Imposantes Design: Großes, zweistöckiges Gebäude, weiß mit rotem Dach.

  • - Geräumiges Wohnzimmer: Platz für die gesamte Familie, gemütlich gestaltet.
  • - Flexibler Küchenbereich: Hauswirtschaftsraum nach eigenen Vorstellungen gestaltbar.
  • - Ruhige Lage: Erholung und wunderschöne Atmosphäre im gesamten Haus.

Willkommen in Ihrem Traumhaus! Diese Doppelhaushälfte, ein beeindruckendes Einfamilienhaus, bietet eine großzügige Wohnfläche von 100,16 m². Das imposante, zweistöckige Gebäude präsentiert sich in strahlendem Weiß mit einem markanten roten Dach, was nicht nur ästhetisch ansprechend ist, sondern auch für eine einladende Ausstrahlung sorgt.


Die bequeme Veranda lädt dazu ein, entspannte Stunden im Freien zu verbringen und die ruhige Lage sowie die angenehme Atmosphäre dieses wunderschönen Hauses zu genießen.

Der Wohnbereich, links positioniert, ist nicht nur geräumig, sondern auch gemütlich gestaltet, um Platz für die gesamte Familie zu bieten. Der Küchenbereich auf der rechten Seite ist mit einem anliegenden Hauswirtschaftsraum versehen, der flexibel gestaltbar ist und zusätzlichen Raum für individuelle Bedürfnisse bietet.

Im zweiten Stock erwarten Sie insgesamt drei Schlafzimmer, die durch ihre großzügige Gestaltung und ruhige Atmosphäre einen erholsamen Rückzugsort bieten. Verteilt im gesamten Haus befinden sich zwei Badezimmer, die für praktischen Komfort und eine effiziente Nutzung des Wohnraums sorgen.

Bitte beachten Sie, dass die obigen Beschreibungen und Bilder lediglich Beispiele darstellen. Dieses Einfamilienhaus ist nach Ihren individuellen Wünschen anpassbar. Kontaktieren Sie uns, um Ihr Traumhaus zu gestalten. Wir freuen uns darauf, Ihre persönlichen Vorstellungen von Wohnen und Komfort zu realisieren und Ihnen ein einzigartiges Zuhause zu schaffen.

100m² Gesamtwohnfläche

Abmessungen
Länge 11.99m
Breite 5.99m
Wohn-/Nutzfläche
Kellergeschoss 58.84m²
Erdgeschoss 55.54m²
Dachgeschoss 44.62m²
Gesamtwohnfläche 100m²