MHPL_DHH_07_Garten_klein1.jpg
DHH_07_S.jpg
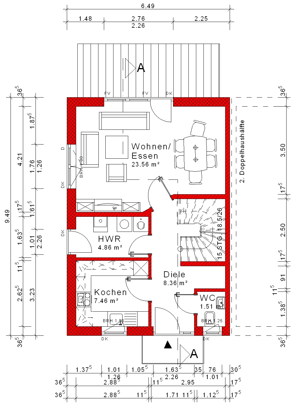
DHH_07_EG_EPF 2.jpg
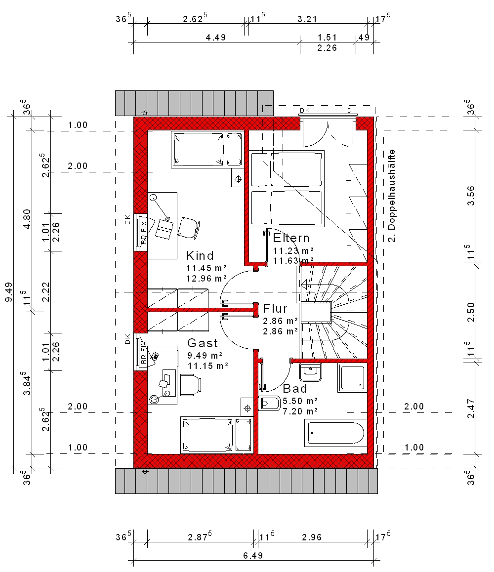
DHH_07_DG_EPF.jpg
DHH_07_KG.jpg
DHH_07G_A1.jpg
MHPL_DHH_07_Garten_klein1.jpg
DHH_07_S.jpg
DHH_07_EG_EPF 2.jpg
DHH_07_DG_EPF.jpg
DHH_07_KG.jpg
DHH_07G_A1.jpg

DHH_07

- Modernes Design: Stilvoll, großzügig, zeitgemäß.

  • - Umweltbewusst: Nachhaltige Eigenschaften, ökologisch verantwortungsbewusst.
  • - Offener Grundriss: Kommunikativer Küchen- und Wohnbereich.
  • - Zweistöckiges Wohnen: Großzügige Wohnfläche, 2 Badezimmer.

Herzlich willkommen in Ihrer Traumimmobilie! Dieses exquisite Einfamilienhaus, eine großzügige Doppelhaushälfte von insgesamt 86,28 m², präsentiert sich als architektonisches Meisterwerk mit einem einladenden, modernen Design. Die ästhetisch ansprechende Kombination aus einem großen, strahlend weißen Äußeren und einem markanten schwarzen Dach verleiht dem gesamten Anwesen einen zeitgemäßen und stilvollen Charakter.


Beim Betreten des Hauses werden Sie von einem einladenden Küchenbereich begrüßt, der geschickt neben dem Hauseingang platziert ist. Von hier aus erstreckt sich der großzügige Wohnzimmerbereich, der nicht nur viel Platz bietet, sondern auch eine gemütliche Atmosphäre schafft, perfekt für gemeinsame Momente mit Ihrer Familie oder zum Empfang von Gästen. Die Treppe zum zweiten Stock befindet sich geschickt in der Mitte des Hauses und führt zu insgesamt drei Schlafzimmern.

Das Besondere an diesem Haus ist die Flexibilität, die es bietet. Neben den zwei Standard-Schlafzimmern haben Sie die Möglichkeit, das dritte Zimmer nach Ihren eigenen Vorstellungen zu gestalten – sei es als Gästezimmer, Büro oder einen Raum für Ihre kreativen Hobbys.

Die Gesamtgestaltung des Hauses sorgt für eine harmonische Atmosphäre, und die durchdachte Platzierung der zwei Badezimmer über beide Stockwerke hinweg macht den Alltag noch komfortabler. Der Einsatz hochwertiger Materialien und das moderne Design tragen nicht nur zu einem stilvollen Erscheinungsbild bei, sondern gewährleisten auch Funktionalität und Langlebigkeit.

Umweltbewusstes Wohnen steht im Mittelpunkt der Planung dieses Hauses. Es wurde mit nachhaltigen Eigenschaften gestaltet, um die Umwelt zu schonen und Ihnen ein ökologisch verantwortungsbewusstes Zuhause zu bieten.

Bitte beachten Sie, dass die obigen Beschreibungen und Bilder lediglich Beispiele darstellen. Dieses Einfamilienhaus ist nach Ihren individuellen Wünschen anpassbar. Kontaktieren Sie uns, um Ihr Traumhaus zu gestalten. Wir freuen uns darauf, Ihre persönlichen Vorstellungen von Wohnen und Komfort zu realisieren und Ihnen ein einzigartiges Zuhause zu schaffen.

86m² Gesamtwohnfläche

Abmessungen
Länge 9.49m
Breite 6.49m
Wohn-/Nutzfläche
Kellergeschoss 49.44m²
Erdgeschoss 45.75m²
Dachgeschoss 40.53m²
Gesamtwohnfläche 86m²