MHPL_DHH_11_Garten_klein1.jpg
DHH_11_S.jpg
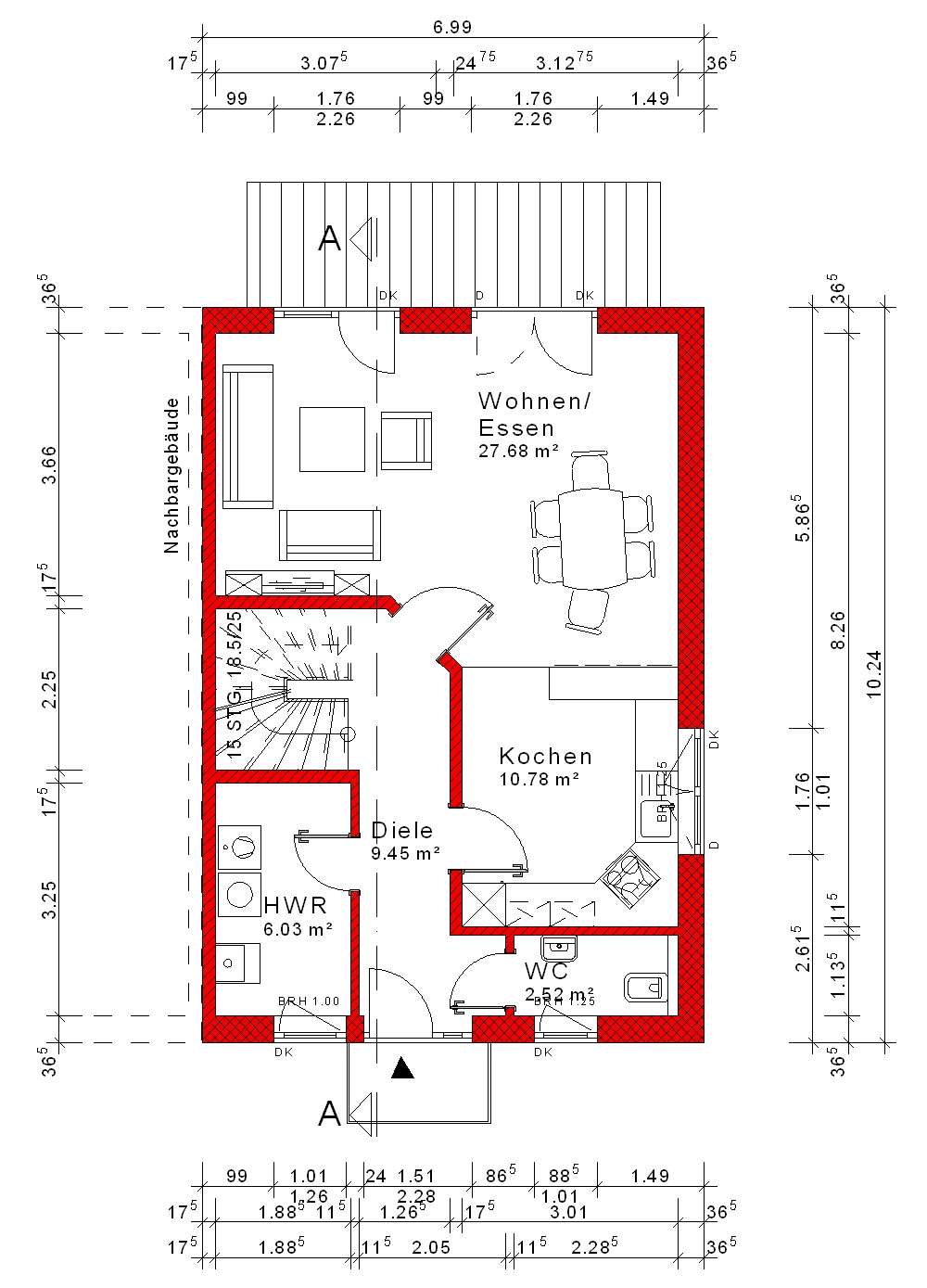
DHH_11_EG_EPF.jpg
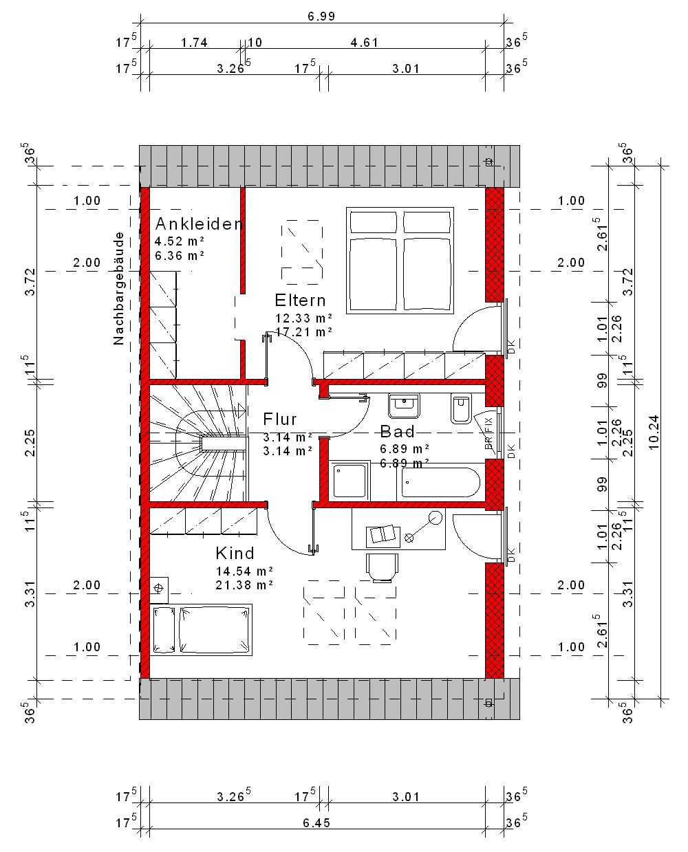
DHH_11_DG_EPF.jpg
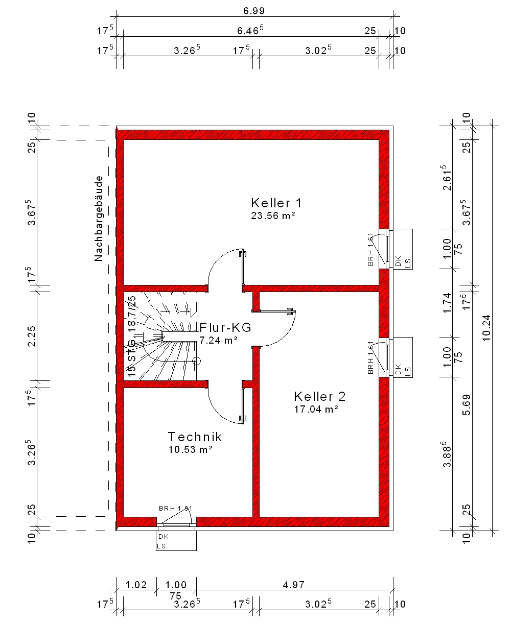
DHH_11_KG.jpg
DHH_12_A1.jpg
MHPL_DHH_11_Garten_klein1.jpg
DHH_11_S.jpg
DHH_11_EG_EPF.jpg
DHH_11_DG_EPF.jpg
DHH_11_KG.jpg
DHH_12_A1.jpg

DHH_12

- Modernes Design: Weißes Haus, markantes rotes Dach.

  • - Geräumiger Wohnbereich: Harmonischer Zugang zur offenen Küche.
  • - Zwei Schlafzimmer im 2. Stock: Eines mit anliegender Ankleide.
  • - Zwei Badezimmer: Komfort über beide Stockwerke verteilt.

Herzlich willkommen in Ihrem Traumhaus! Diese Doppelhaushälfte, ein modernes Einfamilienhaus, beeindruckt mit einer großzügigen Wohnfläche von 171,23 m². Das Haus präsentiert sich in strahlendem Weiß mit einem markanten roten Dach und verfügt über eine großzügige, offene Vorhalle mit einer angrenzenden Terrasse.


Große, offene Vorhalle mit Blick auf den Rasen:

Die Vorhalle des Hauses bietet nicht nur einen beeindruckenden Blick auf den Rasen und die umgebende Natur, sondern schafft auch eine nahtlose Verbindung zwischen Innen- und Außenbereich. Dieser Bereich lädt zu entspannten Momenten und geselligen Zusammenkünften ein.

Geräumiger Wohnbereich mit Zugang zur Küche:

Der Wohnbereich im Inneren des Hauses ist äußerst geräumig und großzügig gestaltet. Mit einem harmonischen Zugang zum Küchenbereich schafft dieses Raumkonzept eine kommunikative Atmosphäre, ideal für familiäre Aktivitäten und gemeinsame Mahlzeiten.

Zwei Schlafzimmer im 2. Stock und Ankleide:

Im zweiten Stock erwarten Sie zwei Schlafzimmer, wobei eines über eine anliegende Ankleide verfügt. Diese durchdachte Gestaltung optimiert den Komfort und schafft einen Raum für Ruhe und Entspannung.

Zwei Badezimmer im gesamten Haus:

Das Haus ist mit insgesamt zwei Badezimmern ausgestattet, die den täglichen Komfort über beide Stockwerke verteilen und somit den Bedürfnissen Ihrer Familie gerecht werden.

Bitte beachten Sie, dass die obigen Beschreibungen und Bilder lediglich Beispiele darstellen. Dieses Einfamilienhaus ist nach Ihren individuellen Wünschen anpassbar. Kontaktieren Sie uns, um Ihr Traumhaus zu gestalten. Wir freuen uns darauf, Ihre persönlichen Vorstellungen von Wohnen und Komfort zu realisieren und Ihnen ein einzigartiges Zuhause zu schaffen.

171m² Gesamtwohnfläche

Abmessungen
Länge 10.24m
Breite 6.99m
Wohn-/Nutzfläche
Kellergeschoss 66.99m²
Erdgeschoss 65.09m²
Obergeschoss 62.71m²
Dachgeschoss 43.43m²
Gesamtwohnfläche 171m²