MHPL_SATTEL_431_klein1.jpg
S_431_S.jpg
S_431_EG_VER.jpg
S_431_DG_VER.jpg
S_431_KG.jpg

Warning: Undefined array key "BildName6" in /homepages/44/d824659835/htdocs/Ninox/listing/index.php on line 829
MHPL_SATTEL_431_klein1.jpg
S_431_S.jpg
S_431_EG_VER.jpg
S_431_DG_VER.jpg
S_431_KG.jpg

S_431

Modernes Design mit großen Fenstern

  • Stilvolle Küche mit Kochinsel
  • Schlafzimmer mit Ankleidezimmer
  • Möglichkeit zur individuellen Anpassung

Ihr Modernes Einfamilienhaus mit Satteldach


Willkommen in Ihrem zukünftigen Zuhause! Dieses moderne Einfamilienhaus besticht durch eine zeitgemäße Außenfassade, die durch zahlreiche große Fenster einen harmonischen Übergang zwischen Innen- und Außenbereich schafft. Das Satteldach verleiht dem Gebäude eine klassische Eleganz, während die klare Linienführung für einen zeitlosen Charme sorgt. Mit einer großzügigen Wohnfläche von 112,08 m² bietet dieses Stadthaus den idealen Raum für ein komfortables und stilvolles Leben.

Offener Wohnraum mit Luftraum und Kochinsel

Im Erdgeschoss erwartet Sie ein einladendes Ambiente: Ein großes Wohn- und Esszimmer mit einer beeindruckenden Glasfront schafft eine helle und luftige Atmosphäre. Der Luftraum, der sich bis ins Obergeschoss erstreckt, verleiht dem Raum ein Gefühl von Großzügigkeit. Der Essbereich mit offener Küche und moderner Kochinsel wird zum Herzstück des Hauses, während ein angrenzender Hauswirtschaftsraum für praktische Funktionalität sorgt. Die Möglichkeit eines Kellers bietet zusätzlichen Raum für individuelle Gestaltungsideen.

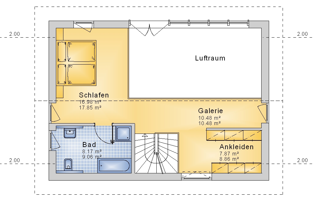
Behagliches Obergeschoss mit Ankleidezimmer und Galerie

Das Obergeschoss präsentiert sich als Rückzugsort mit einem Schlafzimmer, das durch intelligente Raumplanung zum erholsamen Schlafen einlädt. Das angrenzende Badezimmer verwöhnt Sie mit einer Dusche und einer einladenden Badewanne. Ein Ankleidezimmer bietet Stauraum und Komfort. Die Galerie im Obergeschoss rundet das Gesamtbild ab, indem sie einen Blick auf den Luftraum im Erdgeschoss gewährt und eine harmonische Verbindung zwischen den Etagen schafft.

Ihre Traumimmobilie nach Maß gestalten

Bitte beachten Sie, dass die obigen Beschreibungen und Bilder lediglich Beispiele darstellen. Dieses Einfamilienhaus ist nach Ihren individuellen Wünschen anpassbar. Kontaktieren Sie uns, um Ihr Traumhaus zu gestalten.

112m² Gesamtwohnfläche

Abmessungen
Länge 10.99m
Breite 7.99m
Wohn-/Nutzfläche
Kellergeschoss 71.57m²
Erdgeschoss 68.58m²
Dachgeschoss 43.5m²
Gesamtwohnfläche 112m²