MHPL_SATTEL_41_VAR_klein1.jpg
S_041_S.jpg
S_041_EG_VER.jpg
S_041_DG_VER.jpg
S_041_KG.jpg
S_041_A1.jpg
MHPL_SATTEL_41_VAR_klein1.jpg
S_041_S.jpg
S_041_EG_VER.jpg
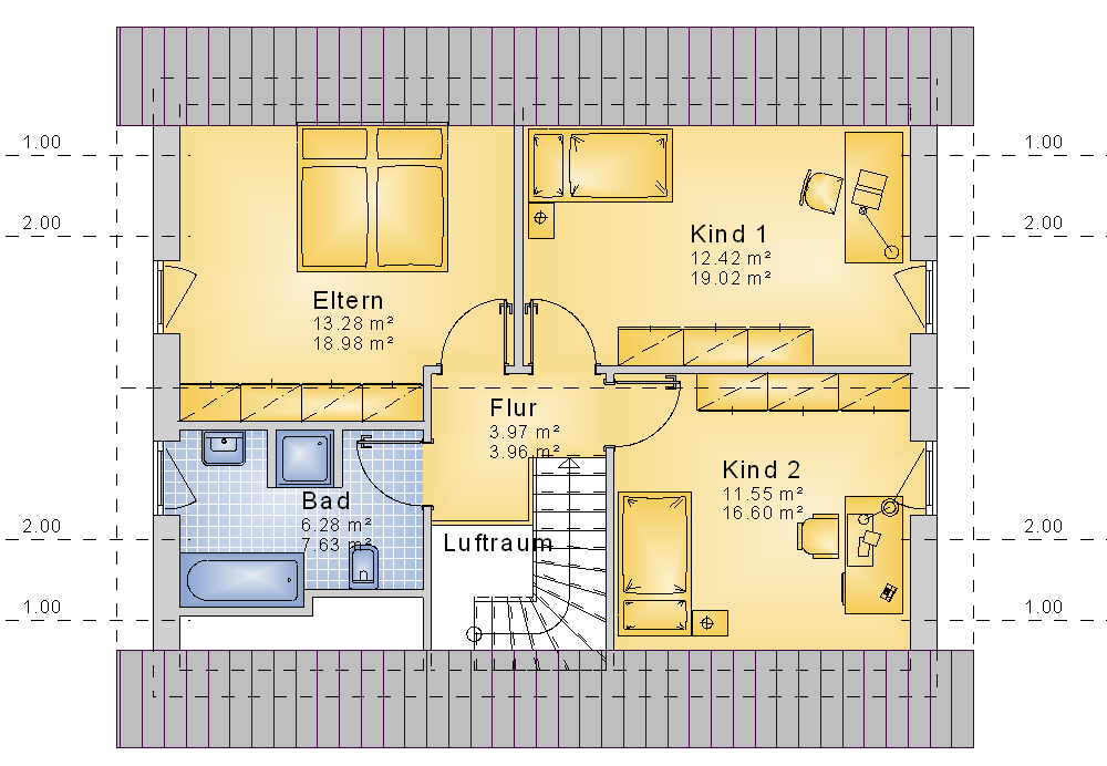
S_041_DG_VER.jpg
S_041_KG.jpg
S_041_A1.jpg

S_041

Satteldach & moderne Außenfassade

  • Drei geräumige Schlafzimmer für die Familie
  • Flexible Anpassungsmöglichkeiten nach Ihren Wünschen

Ihr Einfamilienhaus mit Satteldach


Herzlich willkommen in Ihrem Traumhaus – einem geräumigen Einfamilienhaus mit einem charmanten Satteldach. Dieses 118,77 m² große Heim wurde mit viel Liebe zum Detail gestaltet, um Ihnen höchsten Wohnkomfort zu bieten. Die moderne Außenfassade verleiht Ihrem Zuhause eine zeitgemäße Eleganz und macht es zu einem echten Blickfang in Ihrer Nachbarschaft.

Einladender Wohn- und Essbereich

Treten Sie ein in den großzügigen Wohn- und Essbereich, der durch seine Glasflügeltüren eine harmonische Verbindung zum Garten schafft. Hier können Sie besondere Momente mit Familie und Freunden genießen. Die separate Küche mit Essecke bietet Ihnen ausreichend Platz, um kulinarische Köstlichkeiten zuzubereiten und in gemütlicher Atmosphäre zu speisen. Das Gäste-WC und der Hauswirtschaftsraum vervollkommnen das Erdgeschoss und erleichtern Ihren Alltag.

Drei Schlafzimmer für die ganze Familie

Im Obergeschoss finden Sie drei geräumige Schlafzimmer, die Ihnen und Ihrer Familie eine private Ruheoase bieten. Die kluge Raumaufteilung sorgt für Komfort und Privatsphäre. Jedes Zimmer ist so gestaltet, dass es den Bedürfnissen Ihrer Familie entspricht und für eine angenehme Nachtruhe sorgt.

Ihre Traumimmobilie nach Maß gestalten

Bitte beachten Sie, dass die obigen Beschreibungen und Bilder lediglich Beispiele darstellen. Dieses Einfamilienhaus ist nach Ihren individuellen Wünschen anpassbar. Kontaktieren Sie uns, um Ihr Traumhaus zu gestalten. Wir stehen Ihnen gerne zur Verfügung, um Ihnen bei der Verwirklichung Ihres Traums vom perfekten Zuhause zu helfen.

119m² Gesamtwohnfläche

Abmessungen
Länge 10.74m
Breite 8.49m
Wohn-/Nutzfläche
Kellergeschoss 73.8m²
Erdgeschoss 71.27m²
Dachgeschoss 47.5m²
Gesamtwohnfläche 119m²