MHPL_SATTEL_01_VAR_klein.jpg
S_001_S.jpg
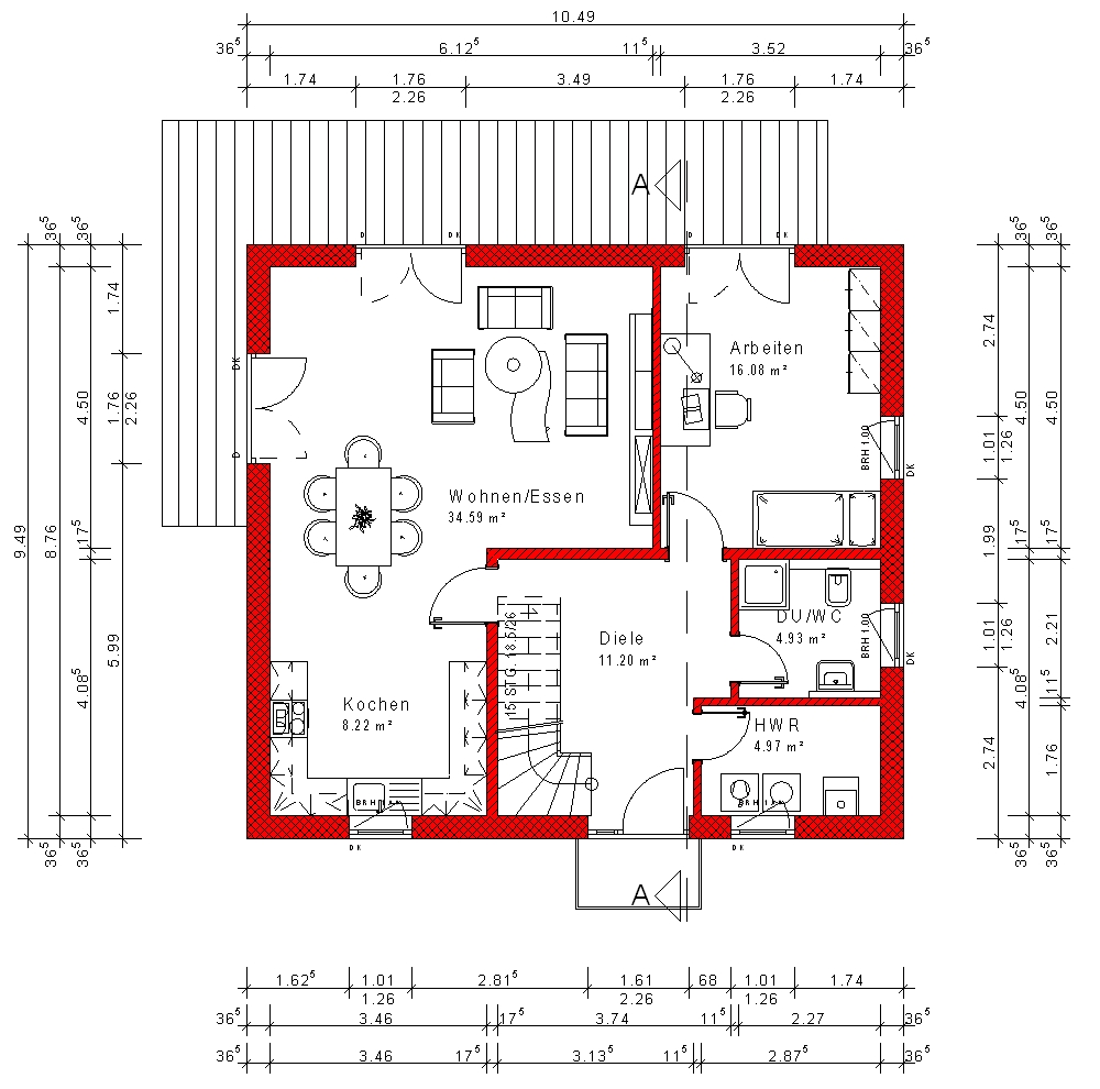
S_001_EG_VER.jpg
S_001_DG_VER.jpg
S_001_EG_ARC.jpg

Warning: Undefined array key "BildName6" in /homepages/44/d824659835/htdocs/Ninox/listing/index.php on line 829
MHPL_SATTEL_01_VAR_klein.jpg
S_001_S.jpg
S_001_EG_VER.jpg
S_001_DG_VER.jpg
S_001_EG_ARC.jpg

S_001

- Modernes Einfamilienhaus mit Satteldach

  • - Offener Küchenbereich, 2 Badezimmer
  • - 3 Schlafzimmer in der 2 Etagen
  • - Umweltbewusstes und nachhaltiges Design

Ihre Traumimmobilie: Ein modernes Einfamilienhaus mit Satteldach.


Willkommen in Ihrem Traumhaus! Dieses Einfamilienhaus mit strahlend weißer Fassade und einem markanten roten Dach bietet Ihnen zeitgemäßen Komfort und Stil. Mit einer großzügigen Wohnfläche von 135,80 m² ist dieses Haus perfekt für Sie und Ihre Familie. Die großzügigen Terrassen und bodentiefen Fensterflächen schaffen nicht nur eine zeitgemäße Optik, sondern auch eine effiziente Nutzung des Tageslichts.

Geräumiger Wohnbereich für die ganze Familie und Arbeitszimmer:

Der großzügige Wohnbereich in diesem Haus lädt zum gemeinsamen Beisammensein ein. Hier können Sie Zeit mit Ihrer Familie verbringen und Gäste willkommen heißen. Zusätzlich gibt es ein Arbeitszimmer, das Raum für konzentriertes Arbeiten oder Studieren bietet.

Offener Küchenbereich und 2 Badezimmer:

Der offene Küchenbereich bietet einen großartigen Blick auf den Wohnbereich und schafft eine kommunikative Atmosphäre. Die hochwertigen Materialien und die moderne Gestaltung machen das Kochen zu einem Vergnügen. Darüber hinaus verfügt das Haus über zwei Badezimmer, was den Alltag noch komfortabler macht.

3 Schlafzimmer auf 2 Etagen:

Im Obergeschoss finden Sie drei gemütliche Schlafzimmer, die ausreichend Platz für Ihre Familie und Gäste bieten. Die großzügige Gestaltung sorgt für Wohlbefinden und Privatsphäre.

Umweltbewusstes Wohnen:

Dieses Haus wurde mit umweltbewusstem Denken gestaltet und bietet nachhaltige Eigenschaften, die die Umwelt schonen.

Ihre Traumimmobilie nach Maß gestalten:

Bitte beachten Sie, dass die obigen Beschreibungen und Bilder lediglich Beispiele darstellen. Dieses Einfamilienhaus ist nach Ihren individuellen Wünschen anpassbar. Kontaktieren Sie uns, um Ihr Traumhaus zu gestalten. Wir freuen uns darauf, Ihre persönlichen Vorstellungen von Wohnen und Komfort zu realisieren und Ihnen ein einzigartiges Zuhause zu schaffen.

136m² Gesamtwohnfläche

Abmessungen
Länge 10.49m
Breite 9.49m
Wohn-/Nutzfläche
Kellergeschoss 81.93m²
Erdgeschoss 79.99m²
Dachgeschoss 55.81m²
Gesamtwohnfläche 136m²