MHPL_SATTEL_28_VAR_klein1.jpg
S_028_S.jpg
S_028_EG_VER.jpg
S_028_DG_VER.jpg
S_028_KG.jpg

Warning: Undefined array key "BildName6" in /homepages/44/d824659835/htdocs/Ninox/listing/index.php on line 829
MHPL_SATTEL_28_VAR_klein1.jpg
S_028_S.jpg
S_028_EG_VER.jpg
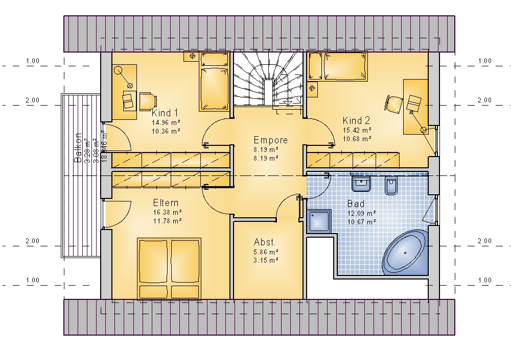
S_028_DG_VER.jpg
S_028_KG.jpg

S_028

- Weißes Haus mit rotem Dach für zeitlose Ästhetik

  • - Praktische Speisekammer für organisierte Küche
  • - 4 Schlafzimmer, flexibles Gästezimmer
  • - Frei gestaltbare Empore, 2 Badezimmer auf 2 Stockwerken.

Ihre Traumimmobilie: Ein geräumiges Einfamilienhaus mit Satteldach und einer großzügigen Wohnfläche von 135,12 m².


Das Haus präsentiert sich in Weiß mit einem auffälligen roten Dach und bietet ein komfortables und einladendes Zuhause.

Weißes Haus mit rotem Dach:

Die weiße Fassade und das rote Dach verleihen dem Haus eine klassische und zeitlose Ästhetik, die viele Menschen anspricht.

Offener Wohn- und Küchenbereich:

Der Wohnbereich ist nahtlos mit der Küche verbunden, was eine offene und kommunikative Atmosphäre schafft. Die Nähe zur Küche erleichtert die Zubereitung von Mahlzeiten und das Zusammensein der Familie und Gäste.

Praktische Speisekammer neben der Küche:

Neben der Küche befindet sich eine Speisekammer, die dazu dient, Lebensmittel und Vorräte aufzubewahren, was die Küche aufgeräumt und organisiert hält.

4 Schlafzimmer, darunter ein flexibles Gästezimmer:

Im Haus sind insgesamt vier Schlafzimmer vorhanden. Eines davon wird als Gästezimmer genutzt, kann aber je nach Bedarf frei gestaltet werden.

Frei gestaltbare Empore im 2. Stock:

Im zweiten Stock des Hauses befindet sich eine Empore, die vielseitig genutzt und gestaltet werden kann, sei es als zusätzlicher Wohnraum, Bibliothek oder kreativer Raum.

2 Badezimmer auf 2 Stockwerken verteilt:

Das Haus ist mit insgesamt zwei Badezimmern ausgestattet, die auf zwei Stockwerke verteilt sind, was den Bewohnern Bequemlichkeit und Flexibilität bietet.

Ihre Traumimmobilie nach Maß gestalten:

Bitte beachten Sie, dass die obigen Beschreibungen und Bilder lediglich Beispiele darstellen. Dieses Haus kann nach Ihren individuellen Wünschen angepasst werden. Kontaktieren Sie uns, um Ihr Traumhaus zu gestalten. Wir freuen uns darauf, Ihre persönlichen Vorstellungen von Wohnen und Komfort zu realisieren und Ihnen ein einzigartiges Zuhause zu schaffen, das all Ihren Bedürfnissen gerecht wird.

135m² Gesamtwohnfläche

Abmessungen
Länge 10.99m
Breite 8.99m
Wohn-/Nutzfläche
Kellergeschoss 81.52m²
Erdgeschoss 77.21m²
Dachgeschoss 57.91m²
Gesamtwohnfläche 135m²